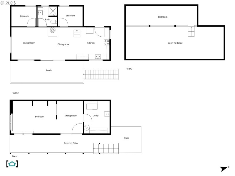
Rebuilt from the ground up in 2021, Cabin #21 is a masterfully crafted retreat designed with intention, history, and serenity at its core. This 3-bedroom, 1-bathroom home seamlessly blends timeless materials with thoughtful design, offering a rare combination of rustic charm and modern comfort. Step inside and you'll immediately feel the soul of the place—T&G flooring milled from old-growth floor joists salvaged from an 1898 Portland home anchors the main level, while interior walls are lined with a character-rich mix of reclaimed shiplap and siding. The kitchen is both functional and storied, featuring cabinetry lovingly restored from a mid-century Portland Hills residence.This cabin is a celebration of reclaimed craftsmanship, from the 100% salvaged cedar and Douglas fir used in the sauna and wood shed, to the layered textures that bring warmth and authenticity to every room. The layout includes a cozy sleeping loft, a private downstairs suite, and multiple outdoor living spaces—including a spacious main deck overlooking protected Conservation land, a lower dining deck for quiet evenings, and a third private deck dedicated to the sauna experience.Nestled at the edge of unbuildable Conservation land, the property offers unmatched peace and privacy, with walking trails and quick access to the White Salmon River just steps away. Whether you're sipping coffee on the deck, soaking in the sauna, or exploring nearby paths, nature is always close at hand.Cabin #21 is not just a home—it’s a story, a sanctuary, and a one-of-a-kind opportunity to own a thoughtfully crafted retreat. Shown by appointment only. No Drive-by's. Must be accompanied by an agent.
Park and Northwestern Lake Park. Walk in on Condit Rd. (past gate), walk to the end and follow signs
Dwelling Type: Residential
Subdivision: Northwestern Lakes Cabins
Year Built: 2021, County: US
Park and Northwestern Lake Park. Walk in on Condit Rd. (past gate), walk to the end and follow signs
Listing is courtesy of Windermere CRG
Sign in to your account to continue