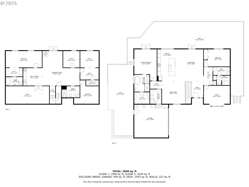
Discover this 4,270 sq. ft. private retreat with 5 bedrooms, 4 baths, and stunning mountain views. Perfect for multigenerational living, it offers 2 full kitchens, 2 primary suites, 2 laundry rooms, a theater room, and a separate entry. Modern updates include new plumbing (2023), siding (2021), and asphalt (2024) new water heater (2022). Step outside to a 2,400 sq. ft. Timbertech Azek vintage collection wraparound deck built for sunsets and gatherings. The fully fenced property features gated entry, fenced garden with raised beds, dog kennel, irrigation, and a tranquil creek. Romantic, secluded, modern yet classic, and designed for both connection and privacy, this home is a rare find with all of its attention to detail.
USE GPS, from HWY 14 East, Left on Belle Center RD, Left on Old Belle Center Rd, Left on Meko Way,
Dwelling Type: Residential
Subdivision: N/A
Year Built: 2008, County: US
USE GPS, from HWY 14 East, Left on Belle Center RD, Left on Old Belle Center Rd, Left on Meko Way,
Listing is courtesy of Keller Williams Realty