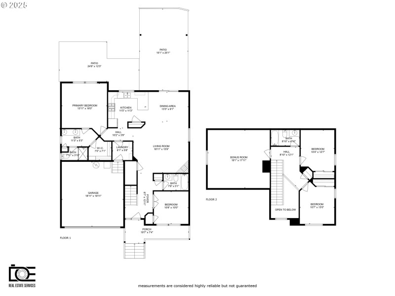
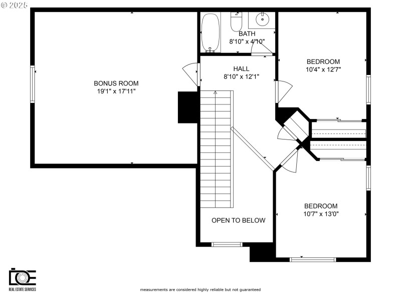
Wonderful contemporary 4 bedroom and 3 full bathroom home with all the right bells and whistles. Great room plan works really well for gatherings large and small plus if you need a little extra space, just open the sliding door to bring the outside in with the covered deck, fire pit and hot tub. Primary suite on the main along with one bedroom that could be a perfect office or guest room. Upper level bonus room gives you options for a family room, theater room or accommodate your needs for any multi-purpose area. Front yard landscaping is maintained by the HOA. Backyard is fully fenced and easy care.
Highway 30 to Pittsburg, R on Hankey, R on Elk Meadows to address
Dwelling Type: Residential
Subdivision: N/A
Year Built: 2015, County: US
Highway 30 to Pittsburg, R on Hankey, R on Elk Meadows to address
Listing is courtesy of RE/MAX Powerpros
Sign in to your account to continue