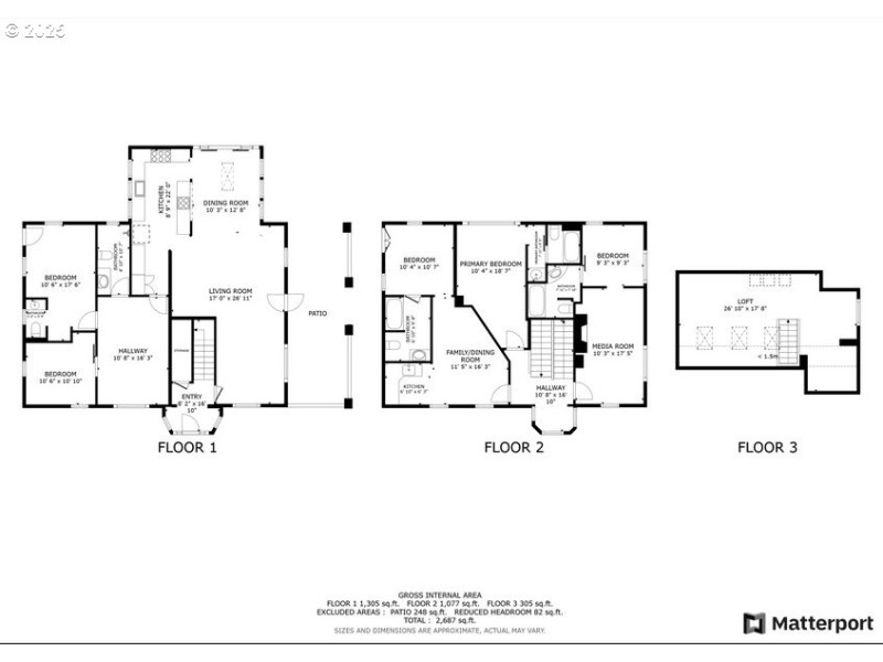
Step back in time to the wonders of this 1910 Mount Hood/Parkdale iconic home and instantly feel the warmth and coziness. This home has been preserved with the rich history of the upper Hood River Valley while keeping the old world elegance and utilizing modern upgrades that blend the old with the new. The current owners of this home are only the third in the home’s amazing history of 115 years. Nestled on the Northern slope of Mt. Hood within the community of Parkdale, there are so many things to do and see. Views of Mt. Hood from various locations inside and outside of home. Enter through a spacious covered front porch with a swing to the main living area that includes a large living room with a warm woodstove and great dining area flowing through to the farm kitchen that is absolutely amazing. The main level also includes an owner’s suite with a family room/sitting area, one and a half baths with one boasting heated floors, a primary bedroom and a second bedroom or office. The second floor features three bedrooms. Two include sitting rooms and each of the three bedrooms include a full bath of their own. The third floor features a bonus room complete with laundry and plenty of storage. So much to see and so many things to list - ask your favorite agent for a Feature Sheet list. Upgraded new Pella windows, new paint, new wiring, new plumbing, the list goes on. The almost one acre of property includes a 100 plus year old Grand Fir tree along with a pond, multiple mature plantings and manicured drip flower beds and raised gardens. It really is like stepping back in time to history. This immaculately maintained home is ready for your vision and and looking forward to the history to come. Call to see today! Sale may be negotiated as private residence or as current B&B. Price for BNB furnishings, book of business, etc. to be negotiated outside of sales price.
Hwy 35 to Cooper Spur to Baseline Dr
Dwelling Type: CommercialSale
Subdivision: N/A
Year Built: 1910, County: US
Hwy 35 to Cooper Spur to Baseline Dr
Listing is courtesy of Don Nunamaker
Sign in to your account to continue