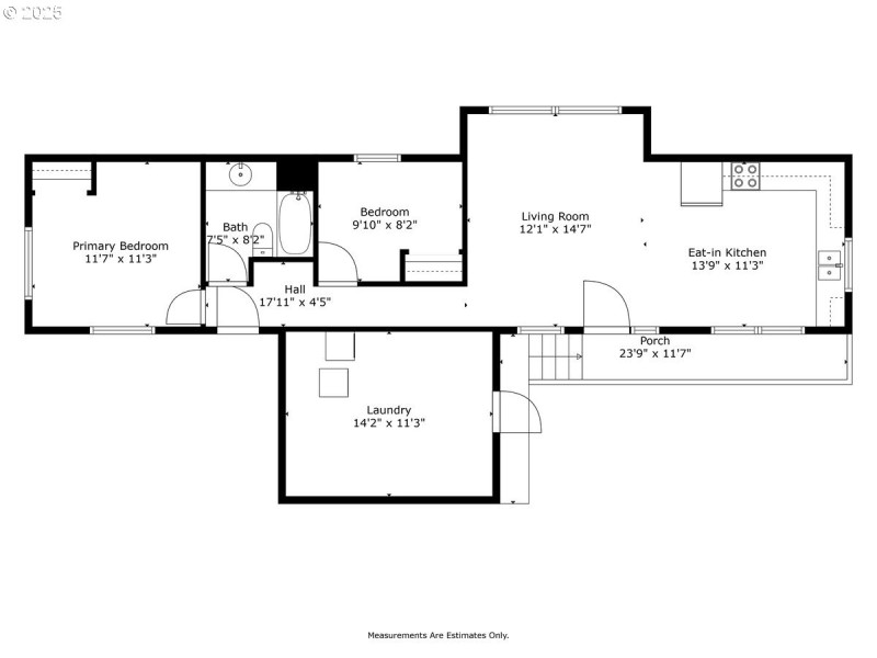
Beautifully renovated home in all ages park. This 2-bedroom, 1-bath mobile home offers comfort, convenience, and affordability. Located in a quiet, friendly community, this home features a spacious open concept living area. Fully renovated and includes new flooring, fresh interior paint, new cabinets, appliances, counters, bathroom, and so much more. Whether you're downsizing, buying your first home, or seeking a low-maintenance lifestyle, this move-in-ready home is a great find. Pets welcome (up to 2 pets, weight limits apply).
Pacific Hwy to Holcomb Ave. Right next to mobiles and right down hill to mobile
Dwelling Type: Residential
Subdivision: Holcomb Hills MH Park
Year Built: 1967, County: US
Pacific Hwy to Holcomb Ave. Right next to mobiles and right down hill to mobile
Listing is courtesy of MORE Realty, Inc
Sign in to your account to continue