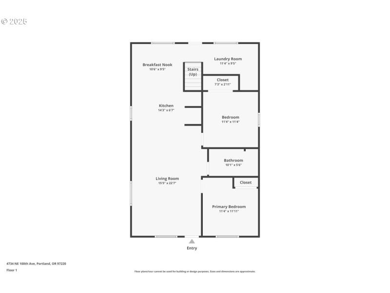
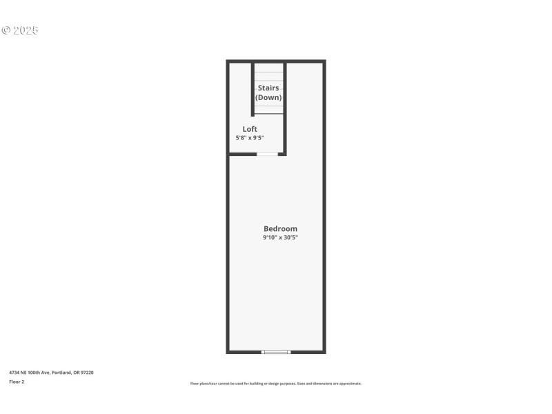
Fully rebuilt, not “updated.” This Parkrose home was taken back to the studs and re-imagined so you get character without the inherited shortcuts. Plumbing, electrical, roof, HVAC, water heater, appliances. All done. All new. All the stuff buyers actually worry about....Inside, durable wood-tone LVP runs through the main living spaces, with tile in the bath and quartz counters in the kitchen. The eating bar is sized for real life, not just a bowl and a spoon....The layout is flexible without being awkward. A spacious front living room that can easily handle both lounging and dining. A second area behind the kitchen that works as a dining room, home office, or quiet retreat when the house gets loud....Upstairs, you’ll find a surprisingly large finished space that adapts to your needs. Primary bedroom, bonus room, studio, or the office you swear you’ll use this time....A long driveway for off-street parking. And a price point where full stud-out rebuilds rarely appear....The heavy lifting is done. The choices are yours. Move-in ready from day one.
Just north of Wygant
Dwelling Type: Residential
Subdivision: N/A
Year Built: 1913, County: US
Just north of Wygant
Listing is courtesy of Keller Williams Realty Portland Elite
Sign in to your account to continue