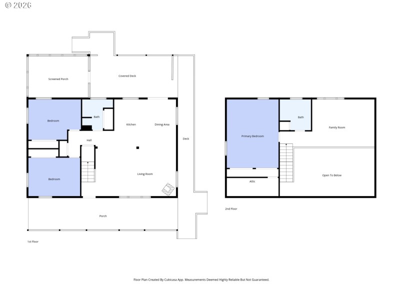
Beautiful log home filled with warmth, character, and timeless charm. Inside, you will love the stunning wood ceilings that continue the log home feel, along with the large vaulted living room, a spacious family room, and an open, bright kitchen that makes everyday living and entertaining easy. The home offers 3 spacious bedrooms, with 2 on the main level, plus a big living room that gives it that classic log home vibe. Step outside and slow down on the front or back porch, plus a screened porch that is perfect for morning coffee, summer evenings, and everything in between. The gorgeous wood ceilings carry to the exterior as well, creating that true cabin in the woods, paradise feeling from every angle.The setting is just as special, with a large yard, frequent wildlife, and a shop that adds incredible flexibility. The shop is heated with a wood burning stove and includes a full bathroom. The bathroom is currently connected to the septic system on the lot next door, and it will be disconnected prior to closing. After closing, the buyer can explore connecting it to the septic system on this property if desired.Enjoy nearby Pine Hollow Lake for year round fishing, kayaking, and breathtaking beauty. In the summer months, bring the toys for water skiing, jet skiing, paddle boarding, and more. When you are ready to explore beyond the lake, you will find an outdoor enthusiast’s dream with hunting, hiking, and rafting close by. Lake life, fresh air, and endless recreation, all wrapped into one special home. Furniture is negotiable.
Morrow Road to S JW Road - SEE PRIVATE REMARKS
Dwelling Type: Residential
Subdivision: N/A
Year Built: 1994, County: US
Morrow Road to S JW Road - SEE PRIVATE REMARKS
Listing is courtesy of Premiere Property Group, LLC
Sign in to your account to continue