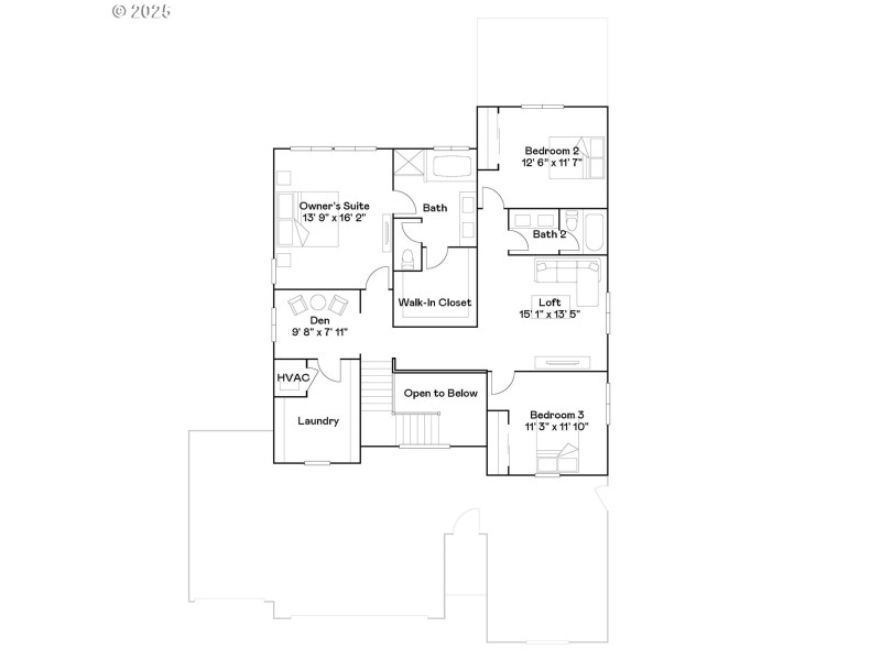
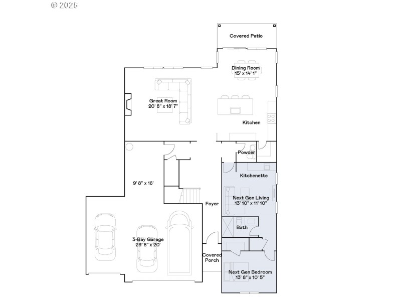
Discover the perfect blend of togetherness and privacy in this innovative modern two-story multi living home. There is a private attached living area on the main that boasts its own entrance, living room, kitchenette, bedroom, full bathroom, and laundry, offering complete independence. The main home features an open-concept first floor with expansive living and dining areas, while upstairs, you will find three bedrooms, a versatile loft, and a dedicated tech space designed for modern living. This homesite boasts territorial views as there are no homes behind it. Price includes refrigerator, washer and dryer, window blinds and air conditioning. Pictures not of this specific homesite. Under construction with estimated completion of December 2025.Homesite #108
Pioneer to Royle
Dwelling Type: Residential
Subdivision: RIDGEFIELD HEIGHTS
Year Built: 2025, County: US
Pioneer to Royle
Listing is courtesy of Lennar Sales Corp
Sign in to your account to continue