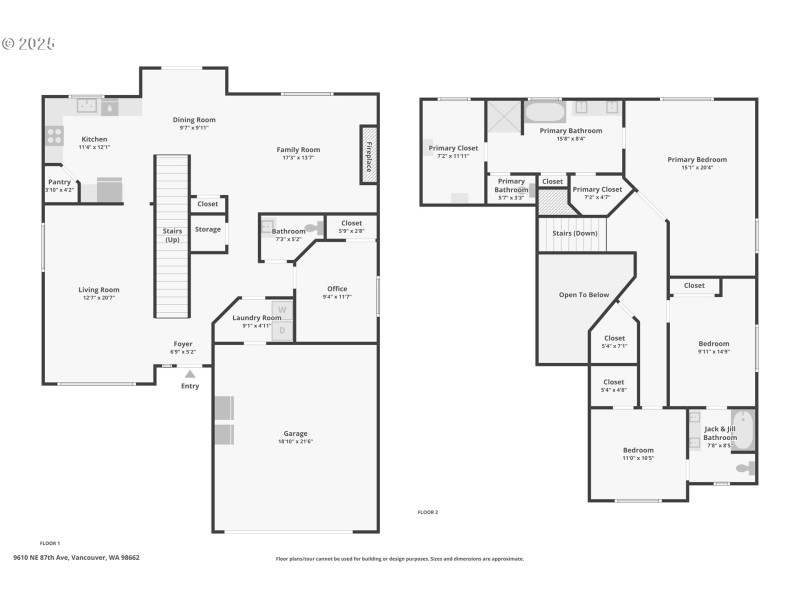
Lovingly Maintained One-Owner Home Backing to Serene Greenbelt. Welcome to this stunning two-story residence, lovingly cared for by the same owners for over 20 years. Nestled against a tranquil greenbelt, this home combines timeless craftsmanship with modern comfort. Step into the soaring two-story entry with cherry hardwood floors and a stone-accented gas fireplace. The vaulted living and dining rooms feature exceptional finish work, while the elegant open iron staircase adds a dramatic architectural touch. The gourmet kitchen is designed for both style and function, boasting granite slab countertops, cherry cabinetry, stainless steel appliances and a pantry. A bedroom/office on the main floor offers versatile space for work or guests. Upstairs, the spacious primary suite includes a cozy sitting area, dual walk-in closets, freestanding tub, double sinks and tile floors. Two additional bedrooms share a convenient Jack-and-Jill bath. Enjoy year-round outdoor living on the covered deck overlooking the peaceful greenbelt and the fenced backyard is perfect for relaxation or play. The home also offers central A/C, a built-in central vacuum, ample storage, extra parking and low-maintenance landscaping. Located in an established neighborhood just minutes from parks, top-rated schools, shopping and freeway access, this home is move-in ready and offers the perfect blend of comfort, convenience and nature.
NE 87TH AVE
Dwelling Type: Residential
Subdivision: N/A
Year Built: 2004, County: US
NE 87TH AVE
Listing is courtesy of Handris Realty Company