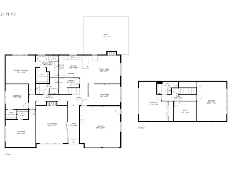
Custom Contemporary Retreat in the Coveted Rock Creek Neighborhood! Welcome to this stunning 6 bedroom custom contemporary home, perfectly positioned on a quiet loop street in the desirable Rock Creek community. A stylish slate walkway leads to an impressive double door entry adorned with stained glass, setting the tone for the refined elegance within. The tiled foyer opens to a spacious living room featuring a dramatic floor to ceiling stone fireplace and expansive windows that flood the space with natural light. A warm & inviting family room offers a gas fireplace with a striking brick surround that extends to the ceiling ideal for cozy evenings and effortless entertaining. The gourmet kitchen is thoughtfully designed for both everyday living and hosting, showcasing premium stainless steel appliances including a 42” Sub-Zero refrigerator, a 48” Wolf double oven range w/ griddle, and a new 2025 Bosch dishwasher. Beautiful custom quarter sawn white oak cabinetry, additional storage in the utility room, granite countertops, and a generous breakfast bar with seating for four, complete this exceptional culinary space. The luxurious primary suite on the main level offers a private retreat, featuring a spa inspired bath with a walk-in tile shower, freestanding soaking tub, and expansive walk-in closet. Two additional bedrooms on the main floor provide flexibility for guests or office space. Upstairs, you’ll find three more bedrooms and a full bath, including two oversized rooms and a versatile non-conforming bedroom perfect for a music studio, media room, or executive office. Designed for comfortable living and memorable gatherings, this home offers abundant space for family and entertaining alike. Step outside to a peaceful, fully fenced backyard complete with patio space, gas plumbing for a BBQ, raised garden beds, mature blueberry bushes, and thoughtful landscaping. The home backs to Rock Creek Elementary. School and is conveniently located near Westview High School.
185th, W Rock Creek Blvd, R on Columbia
Dwelling Type: Residential
Subdivision: N/A
Year Built: 1968, County: US
185th, W Rock Creek Blvd, R on Columbia
Listing is courtesy of Keller Williams Sunset Corridor
Sign in to your account to continue