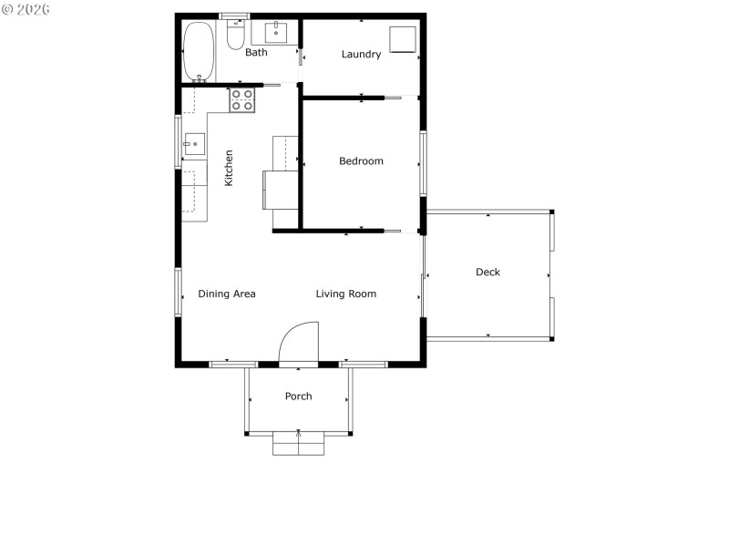
Coming 2026. One of the last 5 houses in Camas View before they're gone. Top to bottom remodel, designer finishes, spacious walk-in closet and laundry room, large fenced-in yard, and a covered deck. The circular floor plan creates a natural ands seamless flow and thoughtful window placement brings in amazing natural light from dusk to dawn. Kitchen has storage galore with a massive full height pantry, coffee bar, lazy-susan corner cabinet, and many drawers. Excellent Camas Schools, space for gardening, and a short drive to everything. Located at the gateway to the Columbia River Gorge and within the highly sought after Camas School district. Plus, Camas’ newest coffee shop will be opening just down the street in 2026. Visit the property website for more information.
WA-14 to Exit 12, first roundabout exit onto SW 6th Ave, .5mi to property
Dwelling Type: Residential
Subdivision: N/A
Year Built: 1949, County: US
WA-14 to Exit 12, first roundabout exit onto SW 6th Ave, .5mi to property
Listing is courtesy of Keller Williams Realty
Sign in to your account to continue