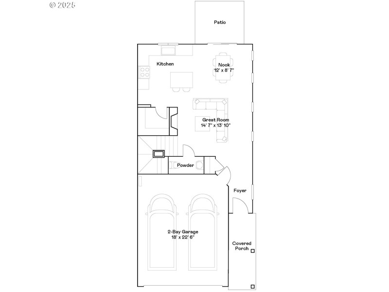
Welcome to Autumn Sunrise by Lennar in Tualatin. The new-construction Blairmont plan offers a modern two-story layout with a fireplace-warmed great room that connects to the kitchen, dining area, and rear patio for easy indoor-outdoor living. Upstairs, two secondary bedrooms and a convenient laundry room surround the spacious primary suite featuring an en-suite bath with a soaking tub, separate walk-in shower, double vanity, and walk-in closet. Interior finishes include quartz countertops, Shaker-style cabinetry, LVP (luxury vinyl plank) flooring in the kitchen and entry way, LVT (luxury vinyl tile) flooring in bathrooms, two-tone interior paint, fencing, and landscaping. This home also includes central air conditioning, a refrigerator, washer and dryer, and blinds—all at no extra cost! Autumn Sunrise is a vibrant community minutes from I-5, shopping, and dining, featuring an onsite park with a playground, fire pit, and a basketball court. Nestled between Wilsonville and Tualatin, residents enjoy nearby access to Bridgeport Village, the Willamette River, golf courses, and Costco. Rendering is artist conception only. Photos are of a similar home, features and finishes will vary. Estimated completion is June '26. Homesite 252.
SW Boones Ferry Rd, East on Norwood Rd, South on 89th Ave
Dwelling Type: Residential
Subdivision: N/A
Year Built: 2026, County: US
SW Boones Ferry Rd, East on Norwood Rd, South on 89th Ave
Listing is courtesy of Lennar Sales Corp
Sign in to your account to continue