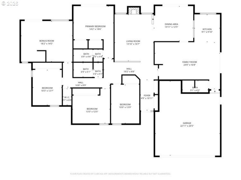
Listed below appraisal value! Well-designed one-level 4 bedroom, 2.5 bath home featuring an efficient and functional floor plan, priced below appraisal value. The kitchen offers a breakfast bar and opens seamlessly to the dining area and sunken living room, complete with a cozy wood-burning fireplace—ideal for everyday living and entertaining. A vaulted bonus room provides flexible space and could serve as a second living area, home office, or potential separate living space with modifications. Situated on a corner lot with a large RV pad. Enjoy outdoor living on the east-facing patio with a pergola equipped with electricity, plus a fully fenced yard. Property is being sold AS-IS.
Hwy 99W, west on 29th, left on Fir Oaks, corner of Fir Oaks & Lakewood
Dwelling Type: Residential
Subdivision: Fir Oaks Fourth Addition
Year Built: 1973, County: US
Hwy 99W, west on 29th, left on Fir Oaks, corner of Fir Oaks & Lakewood
Listing is courtesy of Stringer Real Estate LLC
Sign in to your account to continue