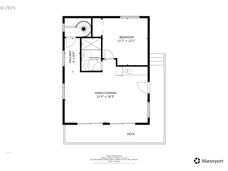
Ocean views. Gold Beach is where the Pacific Ocean meets the legendary Rogue River, a place defined by wild beauty and an active coastal lifestyle. Known for massive salmon runs, steelhead fishing, and endless water sports, this area offers everything from kayaking and ocean charters to Rogue Jet riverboat rides upriver to Agness through dramatic canyons. Add hiking, biking, the vibrant Port of Gold Beach, and wide open beaches just minutes from town, and you have a lifestyle that is both energizing and grounded in nature.Set above the shoreline with sweeping ocean views, this newer 2022 beach house blends casual modern design with true coastal elegance. The top floor is dedicated to a private primary suite retreat where you fall asleep to the sounds of nature and wake to sunlight dancing on the sea. There is also another private exterior entrance for guests. A second primary suite is also located on the main level, offering flexibility, comfort, and main level living.The main level features an open concept layout connecting the kitchen, dining, and living areas, designed for effortless entertaining. Oversized windows flood the space with natural light, highlighting engineered hardwood floors and clean coastal finishes. The kitchen offers high end stainless steel appliances and a quartz eating bar, perfect for morning coffee or relaxed gatherings.With three bedrooms and three full bathrooms, the layout balances privacy and togetherness with ease. Coastal gray fiber cement siding adds timeless style and durability, built to thrive in the marine climate while blending beautifully with the surroundings.Just five minutes to the jetty, where whales migrate, sea lions lounge, seabirds soar, and tides reveal constant motion along the coast. Beachcombing for agates, sand dollars, driftwood, and seashells becomes a way of life. Close to town, yet peacefully elevated with views that stretch forever. Ask to see the 3D tour.
Ocean Way Exit make a right, a left of Sawyer just past the Senior Center. 2nd home on the left
Dwelling Type: Residential
Subdivision: N/A
Year Built: 2022, County: US
Ocean Way Exit make a right, a left of Sawyer just past the Senior Center. 2nd home on the left
Listing is courtesy of RE/MAX Coast and Country
Sign in to your account to continue