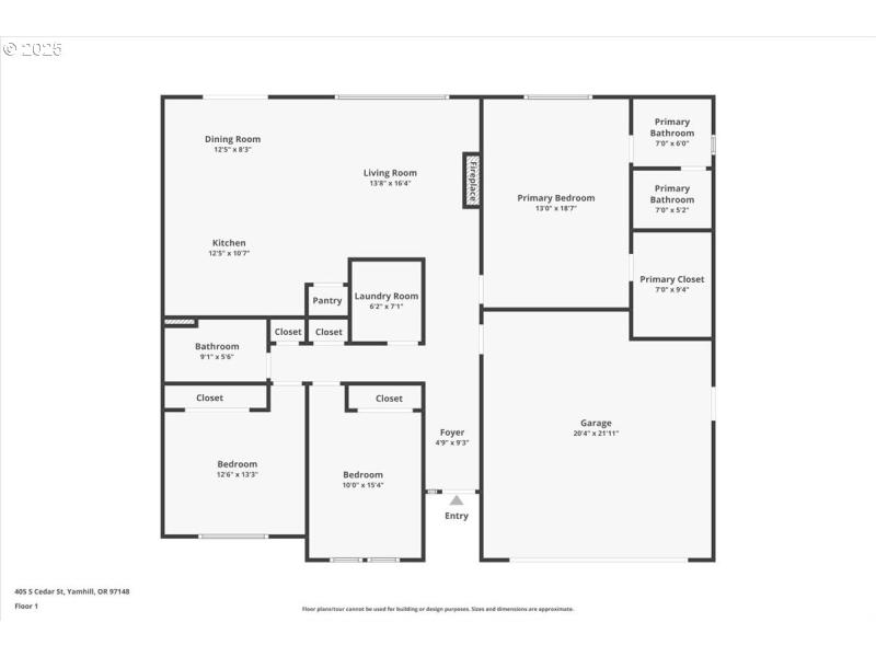
New MasterBuilt home. One level on corner lot with 9ft ceilings and great room with fireplace. Well-appointed kitchen with ss applianes, quartz counters and full tiled backsplash. Master suite with full bath and walk in closet. Front yard landscaping with irrigation included. Taxes TBD.
Main then S. on Cedar St
Dwelling Type: Residential
Subdivision: YAMHILL PARK MEADOWS
Year Built: 2025, County: US
Main then S. on Cedar St
Listing is courtesy of Berkshire Hathaway HomeServices NW Real Estate
Sign in to your account to continue