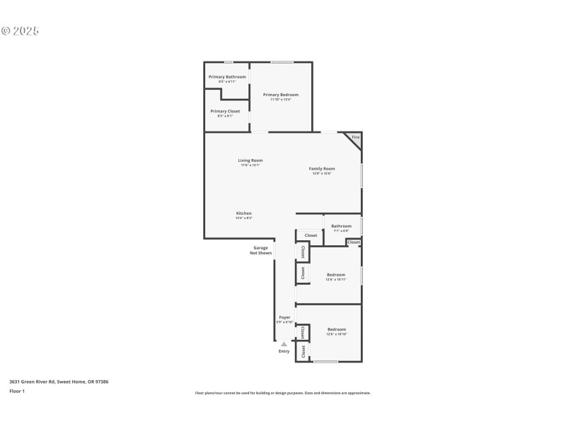
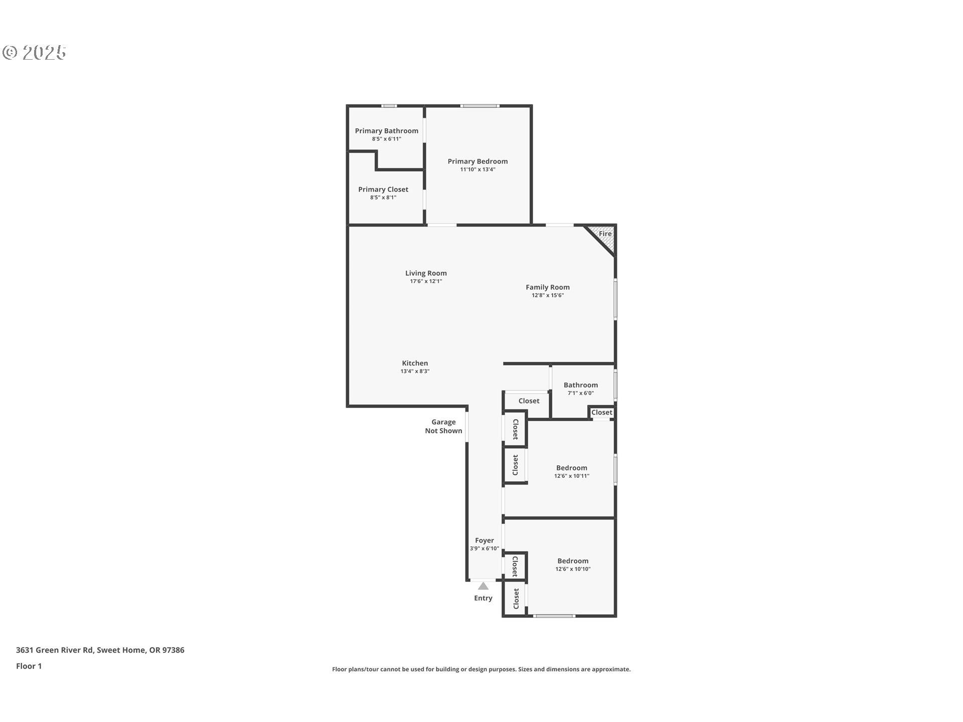
This home qualifies for 100% USDA & VA financing! This is a great unit for those who are retiring or need ADU home. Has no stairs, roll in shower, ADU sink inprimary, wide hallways and doors. Open floor plan with dining area, eat in kitchen island, quartz countertops, tons of cabinets and garage is over sized. Fully fenced yard nice landscaping and quiet area so enjoy. your peace and quiet. All luxury vinyl plank and this unit just shines.
EAST ON MAIN LEFT ON CLARKMILL RT ON GREENRIVER
Dwelling Type: Residential
Subdivision: N/A
Year Built: 2025, County: US
EAST ON MAIN LEFT ON CLARKMILL RT ON GREENRIVER
Listing is courtesy of HomeSmart Realty Group
Sign in to your account to continue