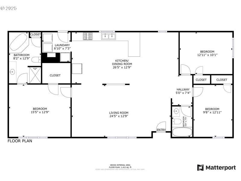
Coastal Lake Retreat: Move-In ready home in Ocean Park, WA. Welcome to your perfect escape from city life. Tucked into the heart of Ocean Park this coastal charm meets the great outdoors. At a spacious 1,680 sf, this double-wide manufactured home offers 3 large bedrooms and 2 full baths. The open layout features vaulted ceilings and a thoughtful split-bedroom design, placing the primary suite on one end of the home for maximum privacy. All appliances are included and the home comes partially furnished—so you can settle in with ease, whether you’re here for the weekends or year-round. This isn’t just a home at the coast… it’s a chance to slow down and enjoy what matters. Maybe you’re escaping the noise of the city or just craving more sky and less screen time, this property is ready when you are. Beyond your front door, Ocean Park is a tight-knit town known for its neighborly spirit and low-key charm. From seasonal farmers markets to community parades and art walks, there’s always something to connect you to the rhythm of the place—if and when you want it. Rod Run, Fourth of July celebration and Sandsations (sand castle building competition) are just a few of the many activities people on the Emerald Coast get to enjoy. Ivite friends over for sipping morning coffee on the deck or a summer barbecue, this home is ready to help you create lasting memories on the coast.Don’t miss your chance to own a piece of the Pacific Northwest coast.. schedule your tour today!
Northbound on Sandridge Rd, turn Left on 250th, Left on Y Ln, 2.5 blocks down on Right.
Dwelling Type: Residential
Subdivision: N/A
Year Built: 2007, County: US
Northbound on Sandridge Rd, turn Left on 250th, Left on Y Ln, 2.5 blocks down on Right.
Listing is courtesy of eXp Realty LLC