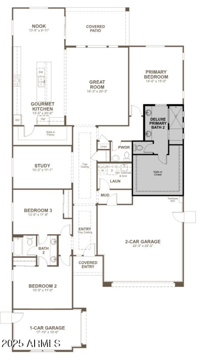
Explore this single-story Cassandra home, ready for quick move-in on a homesite boasting front yard landscaping and driveway pavers. Included features: a welcoming covered entry; a quiet study; a large great room with center-meet panel doors leading onto a tranquil covered patio; a gourmet kitchen offering 42'' cabinets, quartz countertops, stainless-steel appliances, a walk-in pantry and a center island; an open dining area; a beautiful primary suite showcasing a generous walk-in closet and an upgraded private bath with cultured marble countertops; a convenient laundry; a 2-car garage and a single-car garage. This home also offers stone tile flooring and ceiling fan prewiring in select rooms.
I-10 exit jackrabbit, head south past Yuma and turn right onto 181st Ave, pass Toronto, model will be on your right.
Dwelling Type: Residential
Subdivision: PRADERA PHASE 3 PARCEL E
Year Built: 2025, County: N/A
I-10 exit jackrabbit, head south past Yuma and turn right onto 181st Ave, pass Toronto, model will be on your right.
Listing is courtesy of Richmond American Homes