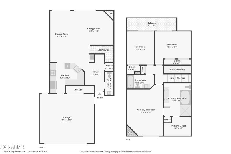
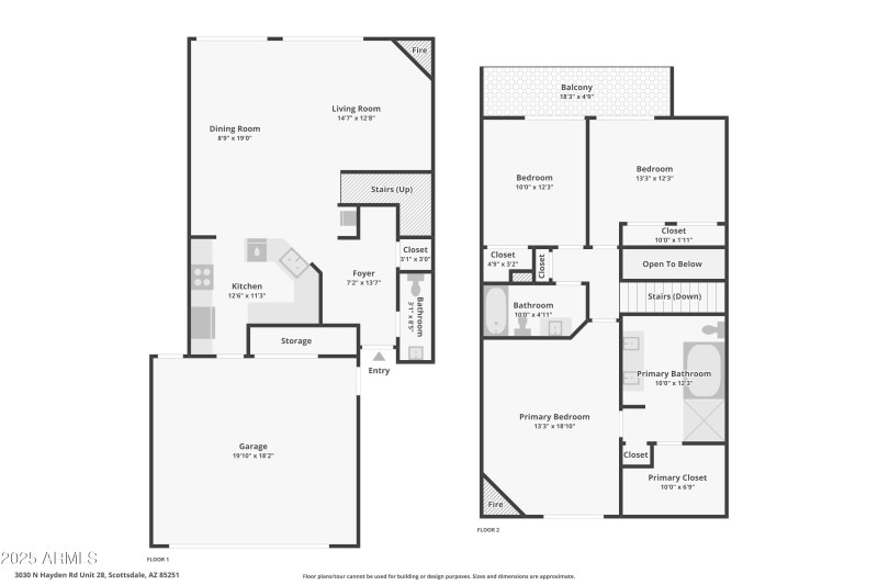
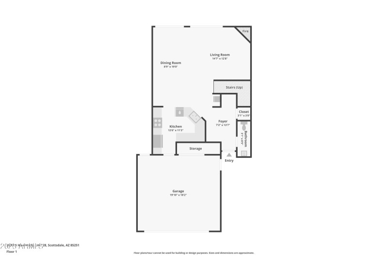
Discover the perfect blend of comfort, style, and convenience in this stunning 3-bedroom, 2.5-bath townhome located in the highly desirable Scottsdale Greens community.
Right next to the Continental Golf Course and Scottsdale's Greenbelt, this home offers unmatched access to top-notch amenities, entertainment, and outdoor living.
Inside, you'll find an upgraded kitchen featuring custom cabinetry with pull-outs, granite countertops, stainless steel appliances, and an undermount sink, perfect for any home chef.
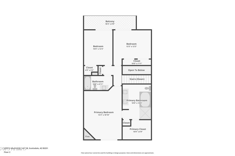
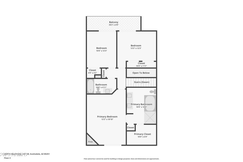
The open layout flows seamlessly into the spacious living area, enhanced by three fireplaces, including one in the luxurious primary suite. The primary bedroom is a true retreat with a walk-in closet, cozy fireplace, and a remodeled en-suite bath complete with travertine and slate flooring, Pottery Barn vanities, a rain shower head, and Restoration Hardware fixtures.
Additional highlights include stained concrete floors, an urban-style staircase, two private patios, a private backyard, and a 2-car garage.
Recent updates include brand new carpeting, new dishwasher, new washer/dryer, and a new garage door & opener... all replaced in 2025!
With a low-maintenance design, this home is perfect for year-round living or a lock-and-leave lifestyle. Enjoy breathtaking mountain views and take advantage of the community pool.
You're just minutes from Old Town Scottsdale, Fashion Square Mall, Tempe Town Lake, Loop 101 & 202, Sky Harbor Airport, Giants Stadium, and some of the best dining, shopping, and entertainment in the Valley.
This home has it all, location, luxury, and lifestyle!
South past Osborn and community will be on west side of street before you hit Thomas Rd.
Dwelling Type: Residential
Subdivision: SCOTTSDALE GREENS REPLAT
Year Built: 1988, County: N/A
South past Osborn and community will be on west side of street before you hit Thomas Rd.
Listing is courtesy of West USA Realty