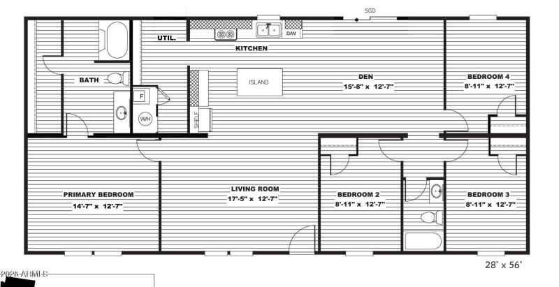
Nestled in a picturesque area near Prescott, Sedona, and Flagstaff, and a short drive from Phoenix, Arizona, this magnificent newly constructed manufactured home boasts 1475 Sqft of living space, complete with 4 bedrooms, 2 bathrooms, a den, and living area, slated for completion in March 2026. Additional features include a new septic system, with the opportunity to place a deposit and select interior and exterior paint colors. This purchase also includes new appliances and 5 mini-split highly efficient air conditioning and heating units, with parking options for a garage or port, and landscaping and fencing available as optional features.
I 17 hwy to exit 262 south on Stagecoach west on Red rock then south on Larry Lane
Dwelling Type: Residential
Subdivision: CORDES LAKES UNIT 8
Year Built: 2026, County: N/A
I 17 hwy to exit 262 south on Stagecoach west on Red rock then south on Larry Lane
Listing is courtesy of American Brokers Inc
Sign in to your account to continue