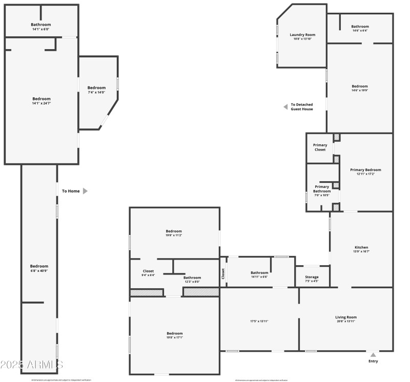
Step into Arizona history with this remarkable 1870s Territorial-era adobe in the heart of the Florence Historic District. Originally built by Jesus Martinez, this beautifully preserved residence blends authentic Sonoran-style architecture with modern updates. Thick adobe walls, original wood floors, hand-hewn viga and latilla ceilings, and colorful courtyard doors showcase its timeless character. The spacious U-shaped layout wraps around a private courtyard perfect for entertaining. Updated kitchen and living spaces complement the home's historic charm, while multiple exterior entrances create flexible living, guest, or studio options. A rare opportunity to own a true piece of Arizona's past. Also Listed under Commercial Mls #6944919
Bailey & 8th Street Directions: Traveling North from the stoplight downtown Florence turn East on 8th St, then North on Bailey and property will be on your right hand side.
Dwelling Type: Residential
Subdivision: TOWNSITE OF FLORENCE
Year Built: 1863, County: N/A
Bailey & 8th Street Directions: Traveling North from the stoplight downtown Florence turn East on 8th St, then North on Bailey and property will be on your right hand side.
Listing is courtesy of Russ Lyon Sotheby's International Realty
Sign in to your account to continue