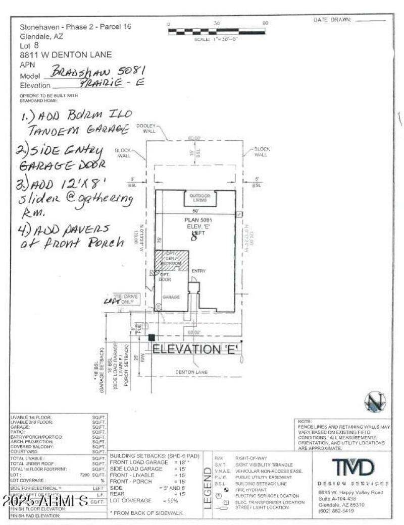
What's Special: Close to Amenities | North Facing Lot | South Facing Patio | Dedicated Study | Oversized Closet in Primary. New Construction - April Completion! Built by America's Most Trusted Homebuilder. Welcome to the Bradshaw at 8811 W Denton Lane in Stonehaven Expedition! This single-story home offers 2,866 sq. ft. with 4 bedrooms, 3 baths, a 2-car garage, formal dining, and a private study. The open layout connects a gourmet kitchen, casual dining, and great room—ideal for living and entertaining. A multi-slide door opens to outdoor space. The primary suite includes dual sinks, a super shower, and a walk-in closet. Additional Highlights include: upgraded gourmet kitchen appliances, 12080 multi-slider at gathering room and super shower at primary bath. MLS# 6951145
AZ-101 take exit 6 for Cardinals Way, Head east on Cardinals Way, right (south) on 87th Avenue. Take the second left (east) on San Miguel Avenue. Models will be on your left.
Dwelling Type: Residential
Subdivision: Stonehaven Expedition
Year Built: 2025, County: N/A
AZ-101 take exit 6 for Cardinals Way, Head east on Cardinals Way, right (south) on 87th Avenue. Take the second left (east) on San Miguel Avenue. Models will be on your left.
Listing is courtesy of Taylor Morrison (MLS Only)
Sign in to your account to continue