Semi-custom new build home in progress! $10,000 seller concessions being offered to buyers with a strong offer. Small builder who prides themselves on top tier craftsmanshi.
Currently this home has completed the concrete, framing and insulation processes. Now were moving forward with the exterior and interior finishing. this home is still semi-custom and buyers can pick various finishes throughout the property depending on when in the build process they make an offer.
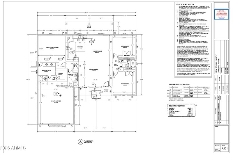
This spacious 1.25-acre lot with a shared well, and no HOA means you'll enjoy unmatched freedom and endless possibilities. Use and personalize your property while gazing upon mountain views in the distance. On the interior, this property will feature plentiful levels of natural sunlight that illuminate the great room that combines kitchen, dining and living room. The master suite will feature a walk in closet and bathroom suite while the guest bedrooms will boost generous sizing, their own respective closets a shared bathroom. Additionally, there will 9+ ceilings throughout, stainless steel appliances, a walk in pantry, 2 bathrooms with tile showers, carefully designed cabinetry layouts and more.
To help you visualize the finished home, we've included photos of the same layout already completed on a neighboring lot, offering a real-world example of what's possible here. The builders pride themselves on great craftsmanship and premium upgrades. Many of these upgrades include a reinforced concrete foundation, 2"x6" exterior construction, high efficiency spray foam insulation, solid core interior doors, 8' overhead front door, taller garage doors/ceilings to allow for larger than normal vehicles, hidden kitchen outlets, and numerous other elevated features.
This property is considered semi-custom. While the layout cannot be changed, the builders are open to customizing interior and exterior materials and finishes. That will allow buyers the ability to tailor the home to their style.
CURRENTLY THIS HOME HAS A SCHEDULED COMPLETION DATE OF APRIL 1ST, 2026. Be aware that photos of house with green exterior are the same floor plan already built on a neighboring lot for reference. Additional photos with alternative exterior colors and designs are for creative reference of possibilities of how buyers can customize home. Also, aerial pictures with lot lines are of the lot for sale that the home will be built on.
From Highway 287 you will head south on Attaway Road until coming to E Vah Ki Inn Road. Head East on E Val Ki Inn Road until you come to North Clemans Road. Head north on North Clemans Road until you reach Angus Lane and take a right to head east.
Dwelling Type: Residential
Subdivision: THE EAST HALF OF THE EAST HALF OF THE NORTH HALF OF THE SOUTHWEST QUARTER OF THE NORTHEAST QUARTER
Year Built: 2026, County: N/A
From Highway 287 you will head south on Attaway Road until coming to E Vah Ki Inn Road. Head East on E Val Ki Inn Road until you come to North Clemans Road. Head north on North Clemans Road until you reach Angus Lane and take a right to head east.
Listing is courtesy of Real Broker
Sign in to your account to continue