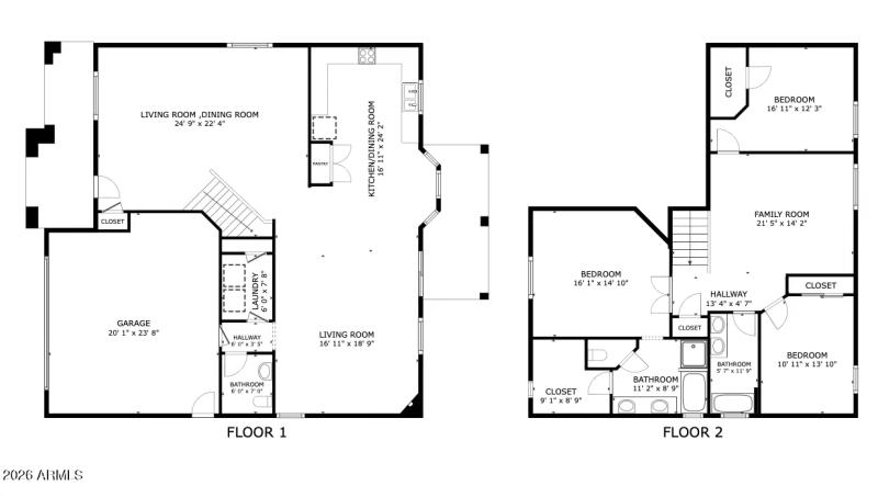
*NOW PRICED TO SELL!* This Southwest Contemporary two-story home blends warm desert character with modern comfort throughout. The main level offers an open flow with a front family room showcasing two preserved, illuminated saguaro skeletons that beautifully set the tone as you enter. A separate dining area and spacious great room with a custom kiva-style gas fireplace create multiple inviting living spaces.
The kitchen features extensive cabinetry, granite counters, a center island, and backyard views. A large laundry room and powder room round out the first floor. Upstairs, you'll find 3 large bedrooms and a loft, including an owner's suite with custom iron doors, walk-in closet, and full bath. Major mechanical upgrades include new Trane HVAC units (2023) and a new water heater. The spotless 2-car garage offers a brand-new WiFi-enabled IQ opener and a man door to the side exterior.
The front and back yards are fully xeriscaped for true low-maintenance living, highlighted by mature desert landscaping, mature fan palms, and a lighted backyard water feature perfect for enjoying Arizona sunsets.
A rare opportunity to own a home with authentic Southwest charm, thoughtful custom details, and an expansive, flexible floor plan.
From Empire and Gary, travel west on Empire. Go south on Village Ln. Go right on Saddle Way and left on Bandolier, then right on Quick Draw Way. Take a right on Spur Cir, house is on the right.
Dwelling Type: Residential
Subdivision: MORNING SUN FARMS PHASE 2
Year Built: 2005, County: N/A
From Empire and Gary, travel west on Empire. Go south on Village Ln. Go right on Saddle Way and left on Bandolier, then right on Quick Draw Way. Take a right on Spur Cir, house is on the right.
Listing is courtesy of eXp Realty
Sign in to your account to continue