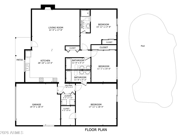
Completely reimagined in 2025, this South Scottsdale home has been transformed into a stylish three-bed, three-bath residence offering 1,825 square feet of modern living and a rare level of detail throughout. Major improvements include a 2023 roof and HVAC system for added peace of mind, along with a two-car garage and updated exterior enhancements. The low-maintenance front yard sets the tone with fresh plantings, a new front and garage door, updated siding, a striking focal-point tree, and paved step entry that enhances the home's curb appeal.
Inside, the great room floor plan is open, bright, and thoughtfully designed for both everyday living and entertaining. Acoustic wall panel accents surround the fireplace and kitchen, adding warmth and architectural character. New LVP flooring flows throughout, unifying each space. The refreshed kitchen showcases stainless steel appliances, stone countertops, a center prep island, full-height tile backsplash, accent lighting over the sink, and updated cabinetry, creating a clean, modern aesthetic that complements the home's overall design.
Every detail of the remodel has been addressed, including new baseboards, doors, lighting, fixtures, and interior and exterior paint. Each of the three bathrooms is fully updated with new vanities, showers, and toilets, offering a fresh experience. A dedicated laundry room with full-size washer and dryer adds convenience and functionality, rounding out the home's interior upgrades.
The backyard is an inviting outdoor retreat featuring a sparkling pool, artificial turf, a mature centerpiece tree, vine-covered walls, and convenient alley access. All of this is set within minutes of Old Town Scottsdale, Chaparral Park, popular dining destinations, coffee shops, and top-rated schools, making this beautifully remodeled home the perfect blend of style, comfort, and desirable location.
Head West on Indian School from Pima. Turn left on 85th Street. Turn left on Columbus. Turn right on 85th Street. 2nd house on the right.
Dwelling Type: Residential
Subdivision: Pointe Scottsdale
Year Built: 1967, County: N/A
Head West on Indian School from Pima. Turn left on 85th Street. Turn left on Columbus. Turn right on 85th Street. 2nd house on the right.
Listing is courtesy of Russ Lyon Sotheby's International Realty
Sign in to your account to continue