Also available as five separate offerings!
This allows investors to tailor their purchase to their operational or investment objectives. Each grouping consists of no more than 4 units in 2 separate buildings which opens the door up to additional financing options.
Newly constructed in 2023.
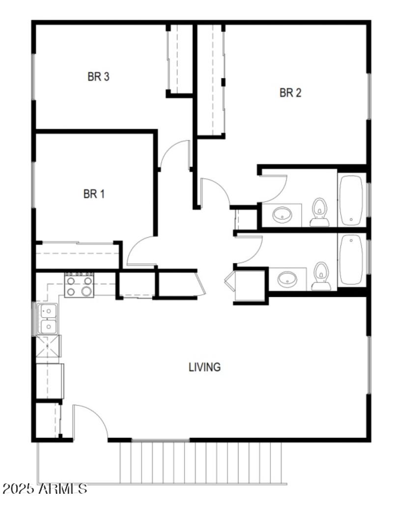
Minutes from Downtown Phoenix, this high class asset combines high-end finishes, spacious modern floor plans (2BR/2BA and 3BR/2BA), and immediate access to major employment centers, transportation corridors, and urban amenities.
Dwelling Type: Multiple Dwellings
Subdivision: N/A
Year Built: 2021, County: N/A
Listing is courtesy of Orion Investment Real Estate
Sign in to your account to continue