Welcome to this spacious and well-maintained two-story home offering an ideal blend of comfort, functionality, and outdoor living. Situated on a generously sized lot, this residence features a thoughtfully designed floor plan with multiple living spaces, flexible room options, and a private backyard perfect for entertaining and everyday enjoyment.
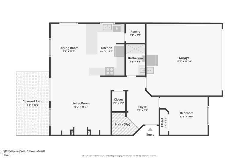
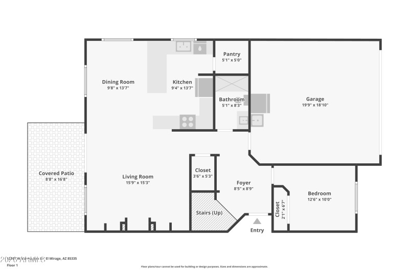
The main level welcomes you with a bright living room and an open dining area that connects seamlessly to the kitchen, creating a functional flow for gatherings and daily living. The kitchen offers ample cabinetry, generous counter space, pantry storage, and convenient access to the backyard.
A full bedroom and bathroom on the first floor provide excellent flexibility for guests, extended family, or a home office. Direct access to the attached two-car garage adds everyday convenience and additional storage.
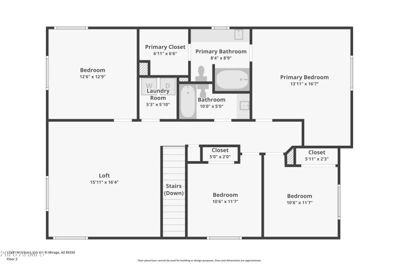
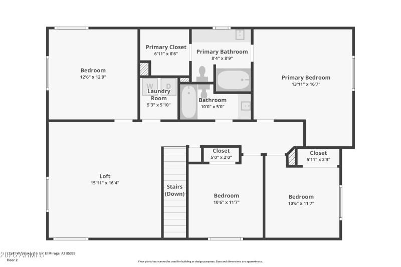
Upstairs, the spacious primary suite serves as a private retreat with a walk-in closet and an ensuite bathroom featuring dual sinks, a soaking tub, and a separate shower.
Three additional bedrooms, a full bathroom, and an upstairs laundry room enhance the home's practicality and ease of living. A large loft offers versatile bonus space ideal for a media room, home gym, playroom, or second family room.
The home features owned solar panels, providing an energy-efficient upgrade designed to help reduce monthly electricity costs. With no lease or power purchase agreement to assume, the owned solar panels offer long-term savings, added value, and increased efficiency.
The expansive backyard is designed for low-maintenance Arizona living, featuring an extended paver patio, covered patio area, artificial turf, mature shade trees, and block fencing for added privacy. The layout provides ample room for outdoor dining, entertaining, recreation, or future enhancements, making it a true outdoor living space.
Located in a desirable neighborhood with convenient access to schools, parks, shopping, dining, and major commuter routes, this home offers excellent value, space, and lifestyle appeal. A fantastic opportunity for buyers seeking a move-in ready home with flexible living areas and a large backyard!
North on Dysart Rd, make right on Acoma, left on 125th Ave, left on Mauna Loa to house.
Dwelling Type: Residential
Subdivision: RANCHO EL MIRAGE PARCEL F
Year Built: 2003, County: N/A
North on Dysart Rd, make right on Acoma, left on 125th Ave, left on Mauna Loa to house.
Listing is courtesy of West USA Realty
Sign in to your account to continue