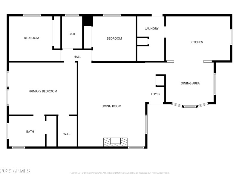
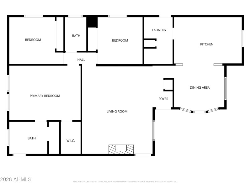
This charming 3-bedroom, 2-bath home sits on 3.3 fully fenced acres, offering space, privacy, and versatility. The updated kitchen features modern finishes and functionality, perfect for everyday living and entertaining. The living room showcases a beautiful beamed ceiling and a fireplace adding warmth and character to the heart of the home. Outdoors, the property is well-equipped with an RV/hay shade and an RV plug, making it ideal for RV owners, hobby farmers, or those needing extra covered storage. With room to roam and thoughtful upgrades throughout including Vinyl Luxury Plank flooring and New Carpet in the Bedroom, this property blends comfort, practicality, and country appeal. Roof was just replaced and AC recently updated which will help on energy costs Just minutes from Dollar General, Raceway Bar & Grill, Rob's Convenience and Farmers Convenience Store/Restaurant for your shopping/food/fuel needs, and for all you Auto Racers this property is only 20 minutes from Apex Motor Club and approximately 30 minutes from Podium Club at Attessa! Head over to the TACC Community Arena a few miles away where you can compete in or watch Barrel Racing/Rodeo events or head down the Vekol Wash on your horses/quads/SxS!
From Hwy 347,south past Harrah's Casino. Turn right on Papago Road and follow it as it curves south and becomes Warren Road. Turn right on Barnes Road, then right on Deer Trail, and left on Stallion to Home on the left.
Dwelling Type: Residential
Subdivision: HIDDEN VALLEY ESTATES UNIT 20
Year Built: 1989, County: N/A
From Hwy 347,south past Harrah's Casino. Turn right on Papago Road and follow it as it curves south and becomes Warren Road. Turn right on Barnes Road, then right on Deer Trail, and left on Stallion to Home on the left.
Listing is courtesy of The Maricopa Real Estate Co
Sign in to your account to continue