Set in one of Sedona's most coveted corridors, 205 Soldiers Pass Road offers a rare opportunity to build in the heart of red rock country. This .32-acre homesite captures dramatic red rock views and a sense of privacy while remaining just minutes from Sedona's most iconic trail systems, dining, shopping, and art galleries.
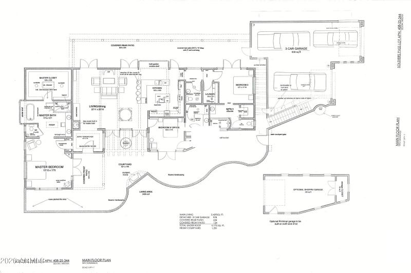
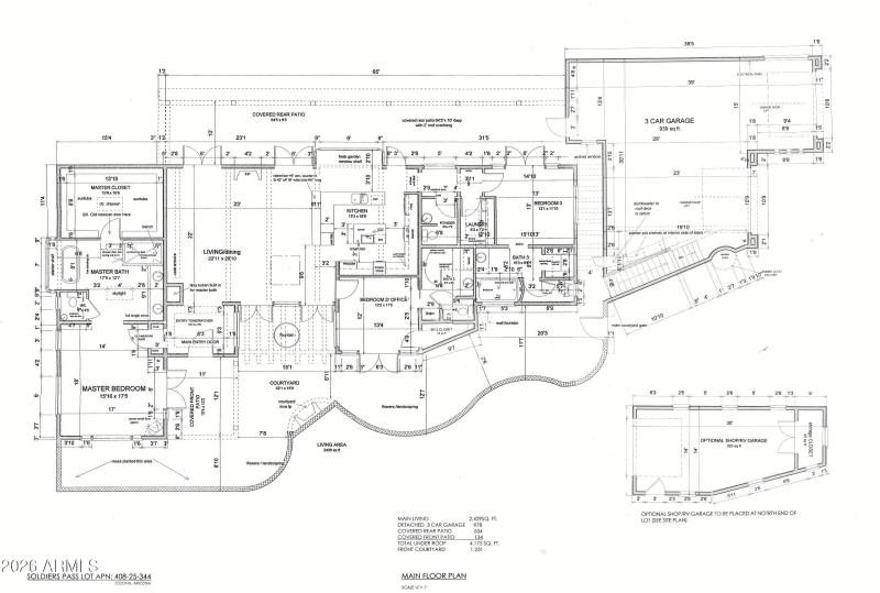
The property includes a full set of architectural plans by Matt Dougan, the acclaimed designer behind Sedona's world-renowned Mariposa Latin Inspired Grill. These thoughtfully designed plans provide a substantial head start toward creating a striking custom residence that harmonizes with Sedona's natural landscape. With no HOA restrictions and short-term rentals permitted (buyer to verify), the lot offers flexibility for a primary residence, second home, or a high-end investment property. Surrounded by natural beauty yet close to everything that defines the Sedona lifestyle, this is a build-ready opportunity in a location that rarely becomes available.
Whether your vision is a modern retreat, a luxury escape, or a thoughtfully designed vacation rental, this property pairs inspired architectural pedigree with an irreplaceable setting.
Dwelling Type: Land
Subdivision: N/A
Year Built: N/A, County: N/A
Listing is courtesy of Realty ONE Group
Sign in to your account to continue