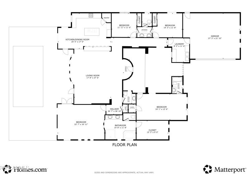
Beautiful, single-level home within the Moon Valley area, with golf courses and hiking trails nearby! Enjoy nearly 3,200 sq ft with no interior steps, a split floor plan, and a rare ATTACHED CASITA with private courtyard entrance, full bath, and walk-in closet. Perfect for entertaining, with a great room layout, tall ceilings and plenty of natural light! Chef's kitchen with gas cooktop, island seating, built-in oven/microwave, walk-in pantry, new dishwasher, premium cabinetry, and dual beverage fridges. The generously-sized primary suite includes a spa-style bath and huge walk-in closet. Two secondary bedrooms share a Jack-and-Jill bath, while a powder room is available for guests. You'll love the sunset and mountain views from the backyard, with a brand-new play pool and pavers!
North on 7th St. East on Hearn. South on 12th St to property on your right.
Dwelling Type: Residential
Subdivision: MOUNTAIN PRESERVE VISTAS
Year Built: 2007, County: N/A
North on 7th St. East on Hearn. South on 12th St to property on your right.
Listing is courtesy of Locality Homes
Sign in to your account to continue