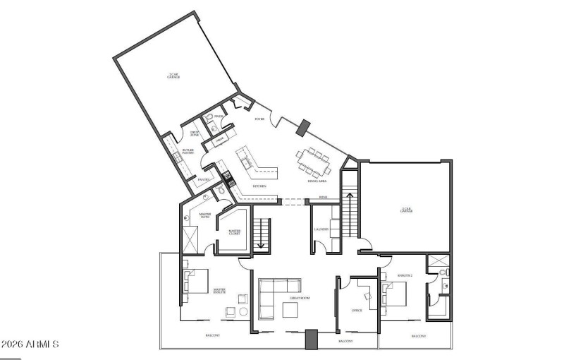
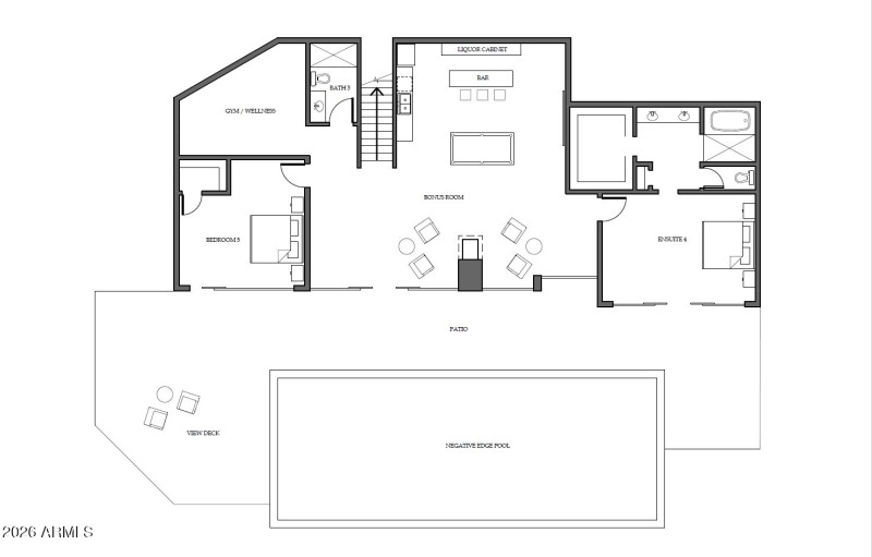
Build your dream home here! Located on the 5th fairway of Firerock Country Club. This custom home allows you to choose what you desire for finishes! This home has 5327 sq. ft. of living space and a 4 car garage designed to capture views and maximize living space!
Take Shea Blvd. to intersection of Fountain Hills Blvd. and Firerock Country Club Dr. take Firerock to gate, once past gate go about 1 mile to Fireridge Tr. Property on the right look for sign.
Dwelling Type: Residential
Subdivision: Firerock Country Club Parcel L-1
Year Built: 2027, County: N/A
Take Shea Blvd. to intersection of Fountain Hills Blvd. and Firerock Country Club Dr. take Firerock to gate, once past gate go about 1 mile to Fireridge Tr. Property on the right look for sign.
Listing is courtesy of MCO Realty
Sign in to your account to continue