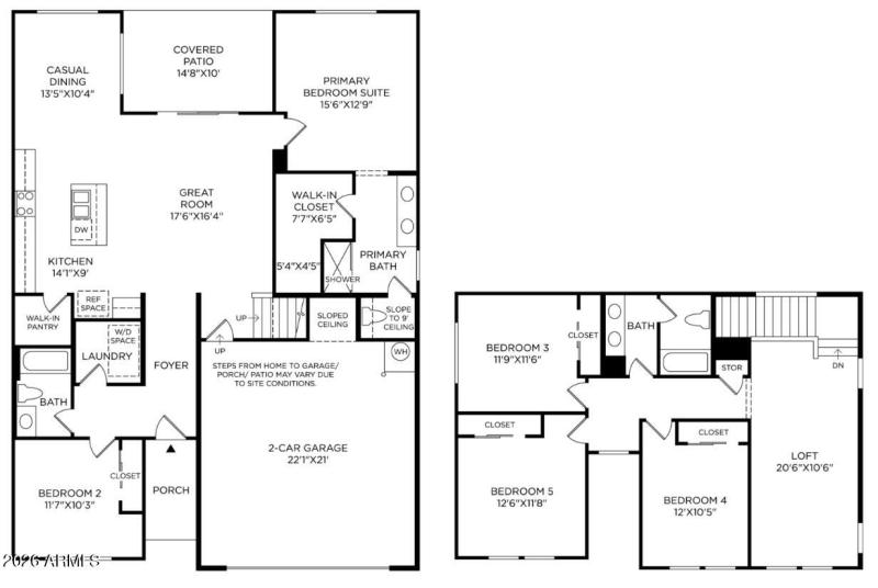
You still have time to personalize your design finishes! Estimated completion late summer 2026. Introducing the Keswick, an exquisite addition to our premier luxury collections. This elegantly designed two-story residence showcases five spacious bedrooms— with a first floor primary retreat—accompanied by a refined upstairs loft ideal for lounging. Sophisticated details include 8' interior doors, an elegant paver driveway and front yard landscape. Set within an exclusive gated golf community, residents enjoy resort-style amenities including championship golf, private dining, pools, and a state-of-the-art fitness center.
Exit Loop 303 at Cactus, Go West past Cotton towards community entrance on the south side of the road. Guard at the gate will provide directions to the Sales Pavilion.
Dwelling Type: Residential
Subdivision: TOLL AT PRASADA UNIT L PHASE I
Year Built: 2026, County: N/A
Exit Loop 303 at Cactus, Go West past Cotton towards community entrance on the south side of the road. Guard at the gate will provide directions to the Sales Pavilion.
Listing is courtesy of Toll Brothers Real Estate
Sign in to your account to continue