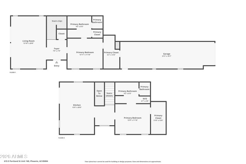
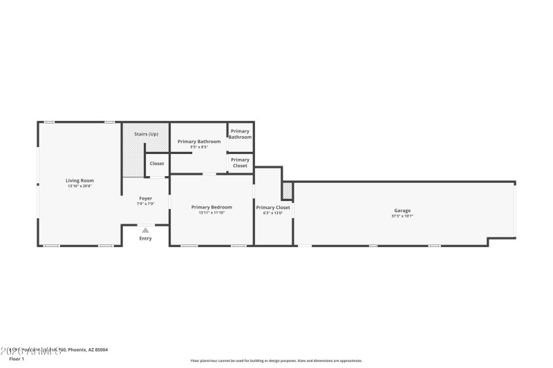
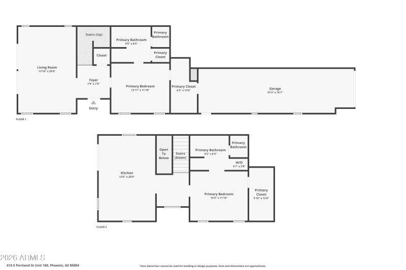
Prime downtown Phoenix location. Gorgeous engineered wood floors, wood shutters throughout. Upgraded fixtures and fans. Downstairs master bath has been remodeled, with built ins, dual sinks and walk in shower. Walk-in closets adjoin both bedrooms. Downstairs living room space and patio open to lush common area featuring BBQ area, a heated lap-pool beneath an art-deco waterfall and an enclosed dog park. Brand new kitchen cabinets. Kitchen opens to additional living space, modern cabinetry, stainless appliances, induction range and balcony off eating area through glass french doors. Unique to this condo is the direct entrance to the garage. The best of Phoenix downtown living, walk to light rail, dining, cultural events, sporting events and Universities.
North on 7th Street right on Roosevelt to first entrance
Dwelling Type: Residential
Subdivision: Artisan Village
Year Built: 2004, County: N/A
North on 7th Street right on Roosevelt to first entrance
Listing is courtesy of HomeSmart
Sign in to your account to continue