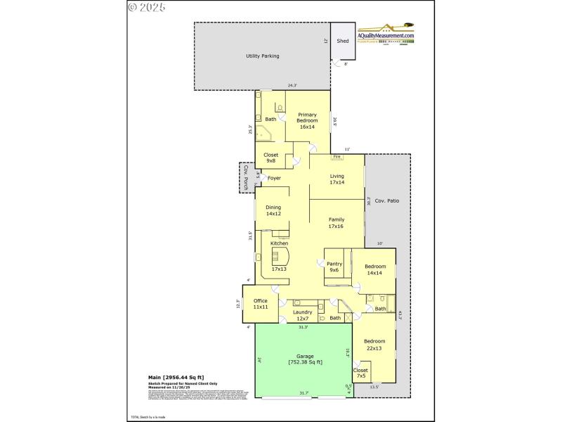
This gorgeous and spacious one level home in desirable McNary neighborhood is looking for new owners. Step through the front door and admire the hardwood floors that lead you into the home. The updated gourmet kitchen features a chef's island with gas stove & down draft vent, granite countertops, built-in microwave and oven, walk-in pantry and a skylight. The formal dining room is the perfect place for entertaining. The private primary bedroom features an updated bathroom with huge walk-in shower, dual sinks and walk-in closet. The other bedrooms and office are located at the opposite end of the house. Cozy up to the gas fireplace in the formal living room, or relax in the family room with sliders that lead onto the covered patio and fully fenced backyard. There's even a central vacuum system! The 3-car garage completes this exquisite home with finished epoxy floors and shelving. Don't miss the gated and covered RV parking along with a sturdy tool shed. Conveniently located to shopping, schools, and transit, this is the perfect house!
Oatfield Rd to McNary, corner of Anna Eve and McNary
Dwelling Type: Residential
Subdivision: N/A
Year Built: 2004, County: US
Oatfield Rd to McNary, corner of Anna Eve and McNary
Listing is courtesy of Premiere Property Group, LLC
Sign in to your account to continue