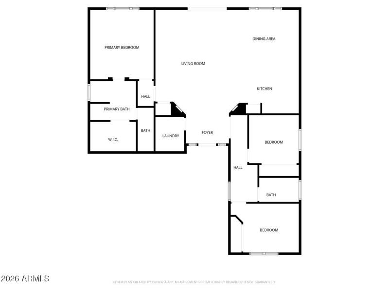
Welcome to this move-in ready gem walking distance to Tempe Sports Complex! Perfect for those who'll love having soccer fields, pickleball courts, skate park & dog park just steps away. Inside, you'll find a thoughtfully updated 3BR/2BA home with a split floor plan offering privacy. The kitchen shines with Corian countertops, pull-out shelves, white appliances & breakfast bar island. The primary suite features a double vanity, separate tub & tiled walk-in shower, plus a generous closet. Enjoy the backyard oasis with covered patio, extended pavers, fruit trees & low-maintenance turf front yard. Major upgrades include new HVAC (2022), roof tiles (2019), windows (2021), water heater (2021), water softener (2023) & reverse osmosis (2024). Washer/dryer included. Move in ready!
From Warner, Go North On Kyrene, East on Palomino Drive, North on Stephanie Lane, Home on the West Side of the Street
Dwelling Type: Residential
Subdivision: PECAN GROVE VILLAGE 3 1ST 2ND AMD
Year Built: 1996, County: N/A
From Warner, Go North On Kyrene, East on Palomino Drive, North on Stephanie Lane, Home on the West Side of the Street
Listing is courtesy of RE/MAX Excalibur
Sign in to your account to continue