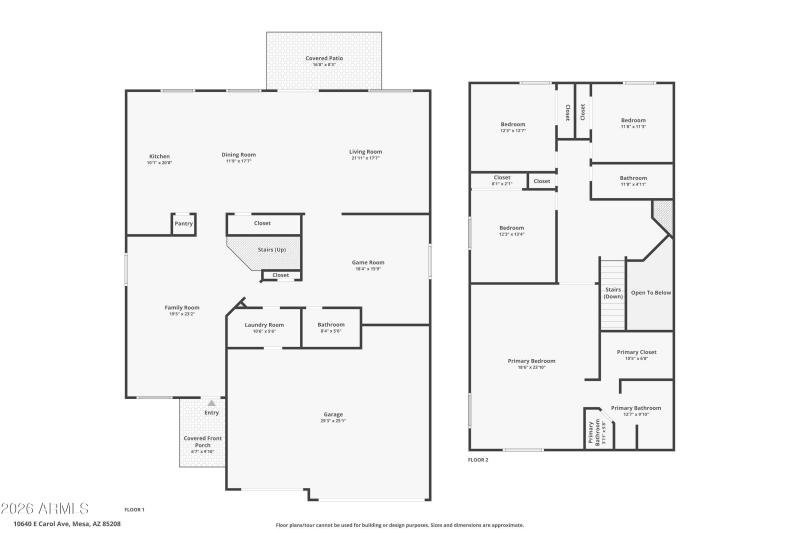
Spacious Home with 4 Bedrooms small loft area and 2 full bath upstairs, Large Den (easily have doors added) and 1.75 Bath Downstairs. New roof underlayment approximately 5 years. New Water heater. New pool motor approx 6 years. A large kitchen featuring granite countertops, stainless steel appliances, two refrigerators, two pantries, and abundant cabinetry. Fresh interior paint, new carpet, and upgraded light fixtures throughout. Plank style tiled flooring in high traffic areas. Owners Suite has vaulted ceilings, his and her vanity, separate shower and garden tub with Large walk in closet. Includes 3-car garage with built-in cabinets, RV gate, low-maintenance landscaping, extended pavered back patio, artificial turf and heated pool. Private backyard with no rear neighbors.
East on Broadway Rd., South on Cheshire, Left on Carmel Ave., Left on Canfield, which turns into Carol Ave., home is on righthand side.
Dwelling Type: Residential
Subdivision: PARKWOOD RANCH
Year Built: 2002, County: N/A
East on Broadway Rd., South on Cheshire, Left on Carmel Ave., Left on Canfield, which turns into Carol Ave., home is on righthand side.
Listing is courtesy of HomeSmart
Sign in to your account to continue