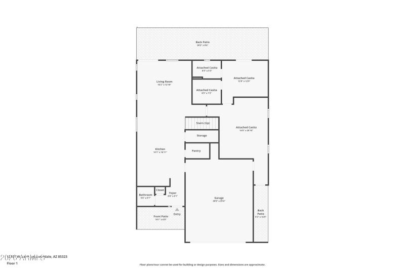
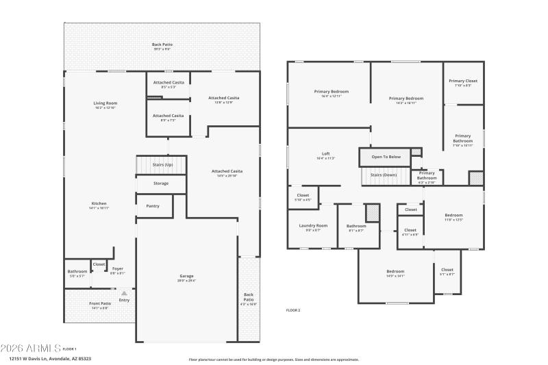
This home adapts beautifully to every season of life! Refined residence offering generous floorplan with bonus family room & elegantly expanded primary suite & convenience of upstairs laundry. Attached 1-bed/1-bath casita lives like a private retreat with its own walk-in closet, additional washer/dryer hookup & separate entrance - an exceptional opportunity for multi-generational living, an in-law suite, college-age independence, or premium rental income. Manicured backyard feels resort-inspired with firepit table and tranquil fountain framed by the community greenbelt. Enhanced with owned solar for elevated efficiency, this home blends serenity, versatility & purposeful design - positioned for a smooth and timely close!
West on Buckeye to 119th Avenue, South on 119th to Cocopah Circle, West on Cocopah that turns North into 121st Avenue to Chase Lane, West on Chase to 121st Drive, South on 121st that turns into Davis Lane and Property along Community Greenbelt.
Dwelling Type: Residential
Subdivision: DEL RIO RANCH UNIT 4
Year Built: 2016, County: N/A
West on Buckeye to 119th Avenue, South on 119th to Cocopah Circle, West on Cocopah that turns North into 121st Avenue to Chase Lane, West on Chase to 121st Drive, South on 121st that turns into Davis Lane and Property along Community Greenbelt.
Listing is courtesy of Compass
Sign in to your account to continue