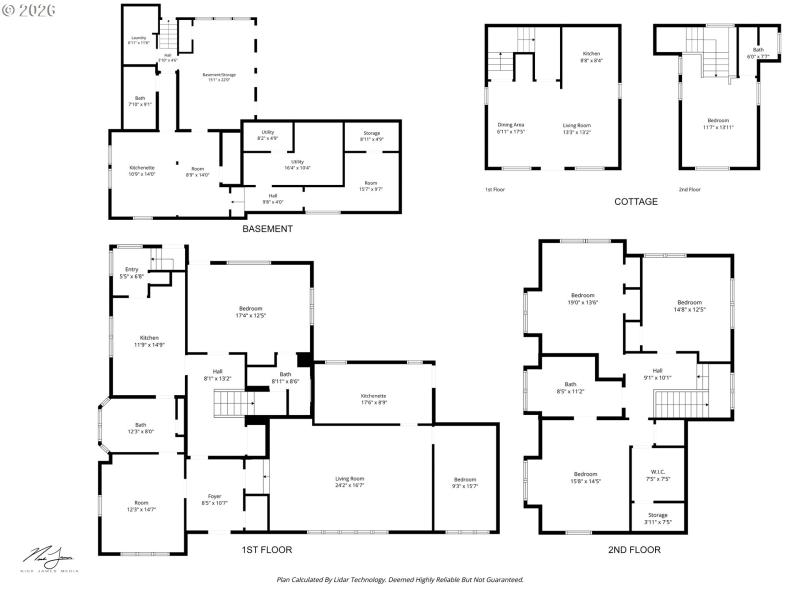
This is a truly unique property with a wide range of potential. On 3 taxlots spanning .64 acres, you find a classic 1929 Tudor with a fully separate cottage, gated parking with 10 spaces, a mature orchard, a large garden and room for the residents to spread out. This storybook property is located almost at the intersection of Chambers & River Rd, adjacent to Whiteaker, minutes to downtown Eugene, a block from Maurie Jacobs Park & the Willamette River. Generous C2 zoning allows for a wide range of creative residential + commercial opportunities. Multi-family housing, mixed use residential/commercial, bed and breakfast, total re-development, many options. Main house is a classic Tudor of a little more than 3000 sq ft. It has 6 BR, 4 BA over three stories. There are some really special architectural touches – arches, woodwork, high vaulted ceilings, big bright windows, a classic wood staircase, large bedrooms. The house has a main full kitchen shared by all, with additional kitchenettes (no stove) in the front and basement apartments. The 1 BR/1 BA cottage also has a full kitchen and appears to have been built at the same time as the house – it’s a 682 sq ft fairytale retreat tucked in the corner under the trees. Tenants all share the well-tended garden and mature orchard, and communal laundry. Total rents for the two homes are $4920/mo. Call your Realtor to discuss the possibilities and get more information on this most interesting compound. Please do not enter property or disturb tenants.
Corner of River Rd and Fir Ln
Dwelling Type: CommercialSale
Subdivision: N/A
Year Built: 1929, County: US
Corner of River Rd and Fir Ln
Listing is courtesy of Windermere RE Lane County
Sign in to your account to continue