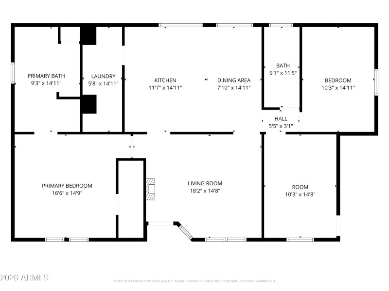
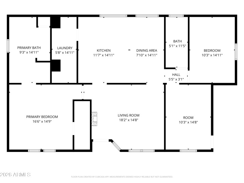
Welcome to this beautifully maintained 2004 Cavco manufactured home offering comfort, convenience, and true ownership. Ideally located with easy access to the US 60 and grocery stores just minutes away, everyday living is effortless.
This property features a 10 foot deep in ground DIVING POOL, perfect for cooling off, entertaining, and enjoying Arizona living at its best. Inside, you'll find thoughtfully UPDATED kitchen and bathrooms, newer dual pane windows, and a newer oversized HVAC system for enhanced comfort and efficiency. The ROOF is only TWO years old, providing added peace of mind.
Best of all, there is NO HOA and NO LAND LEASE, giving you the freedom of owning both the home and the land with no monthly fees. A rare opportunity for affordable living with valuable upgrades in a prime, convenient location.
Head east on E Main Street to 39th Street and turn right (south). Continue to Arbor Street and turn left (east). The home will be on the north side of the street.
Dwelling Type: Residential
Subdivision: COUNTRY LIFE UNIT 1
Year Built: 2004, County: N/A
Head east on E Main Street to 39th Street and turn right (south). Continue to Arbor Street and turn left (east). The home will be on the north side of the street.
Listing is courtesy of Keller Williams Integrity First
Sign in to your account to continue