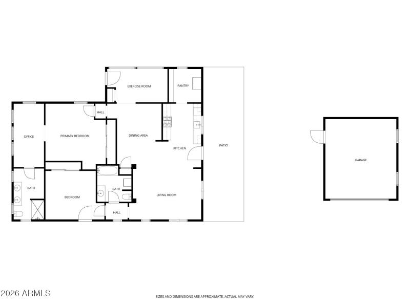
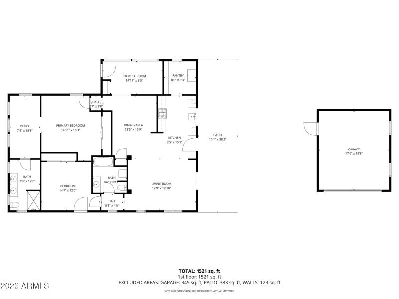
Fantastic opportunity! Garage could be made into a casita has water, power and sewer is also near by. A fully fenced property with a mature landscape & a gated front paver driveway. The interior features a versatile foyer, neutral palette, and tile flooring t/out. The living & dining room combo is paired w/vaulted ceiling. The galley kitchen has SS appliances, designer tile backsplash, a walk-in pantry, and wood cabinets. Main bedroom boasts a triple-wide closet, sitting/office room, & an ensuite w/dual sinks. Secondary bedroom w/outdoor access. If you twant to relax or enjoy BBQ, you have an open patio on the sideyard & a Pergola in the backyard! Also including a detached 1-car garage, along with an RV gate & parking, accessible from the alley. Plus, Stunning Mountain View's! Visit today
Head north on Main St, Turn left onto N Kellner Ave. The property will be on the right.
Dwelling Type: Residential
Subdivision: SUPERIOR TOWNSITE
Year Built: 1990, County: N/A
Head north on Main St, Turn left onto N Kellner Ave. The property will be on the right.
Listing is courtesy of HomeSmart
Sign in to your account to continue