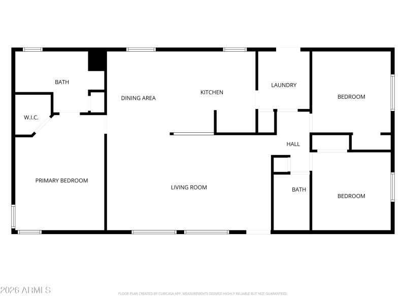
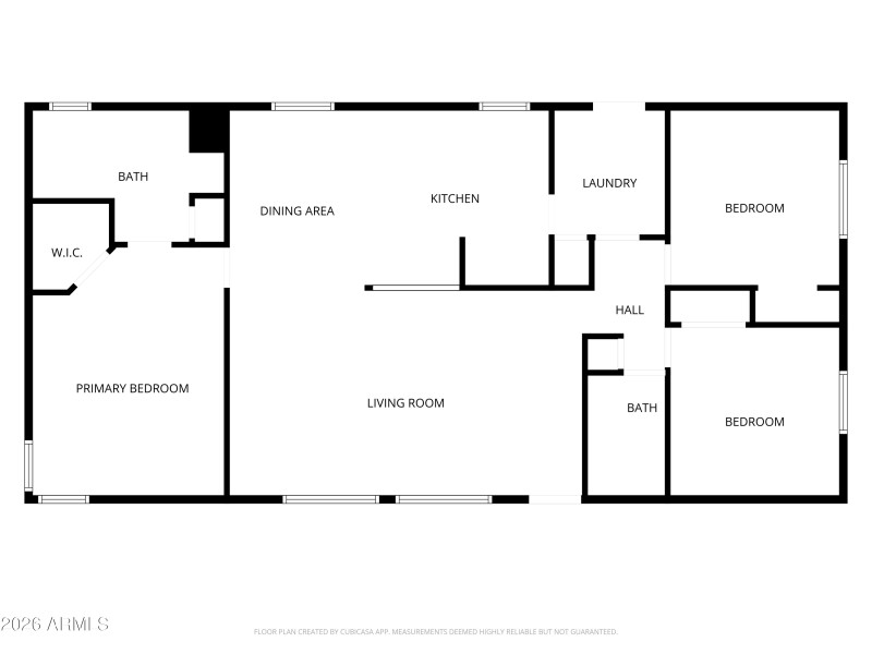
Check out this home in Payson Northeast. This neighborhood has Tall Ponderosa Pines and is truly in the woods. Renovations are 95% done and will be completed before the end of closing. Home offers Split floor plan, Arizona Sunroom, and spacious living room. New roof in 2018, recent updates include new flooring, light fixtures, and door Hardware. updates to be completed before closing include: double vanity installed in master bath, new entry door for the home, new entry door for the semi detached bedroom, flooring and paint in the semi detached 4th bedroom, All miscellaneous flooring and baseboards complete, All electrical outlet covers and trim complete, doors and door hardware installed, Broken window replaced, chain link fence in backyard removed, tub in 2nd bath will be resurfaced.
North on Highway 87, Right onto E. Sherwood, Left onto N. Easy Street, Right onto N. Matterhorn Rd. Property on the right, sign on property
Dwelling Type: Residential
Subdivision: Payson North U4A
Year Built: 1985, County: N/A
North on Highway 87, Right onto E. Sherwood, Left onto N. Easy Street, Right onto N. Matterhorn Rd. Property on the right, sign on property
Listing is courtesy of HomeSmart Pros
Sign in to your account to continue