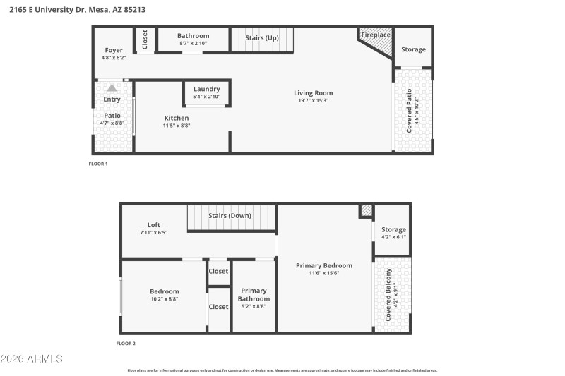
2-bedroom, 1.5-bath townhome that's ideal as a starter home or investment property. Both bedrooms are located upstairs, along with the full bathroom, and one bedroom features a private balcony. The downstairs great room offers a cozy fireplace and opens to a walk-out patio, creating a comfortable space for relaxing or entertaining. The kitchen and convenient half bath are also located on the main level. Tile flooring downstairs adds to the home's appeal. Residents enjoy access to a community pool and spa. A smart layout, low maintenance, and great potential--this townhome checks all the boxes for value and versatility.
Gilbert go east on University to 22nd Place and go south. Community is on the west side
Dwelling Type: Residential
Subdivision: CITRUS VIEW CONDOMINIUMS PHASE 1 AMD
Year Built: 1980, County: N/A
Gilbert go east on University to 22nd Place and go south. Community is on the west side
Listing is courtesy of My Home Group Real Estate
Sign in to your account to continue