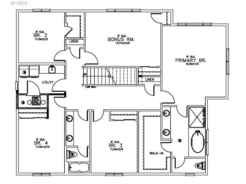
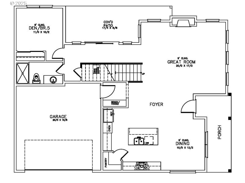
See Our Team About Our Closing Cost and/or Rate Buydown Opportunity! Featuring a spacious open floor plan for entertaining and relaxing. Main floor features a glass slider that opens to the 17'x9' covered patio that overlooks greenspace with a walking path. Kitchen is equipped with SS Whirlpool appliances for gourmet nights in. Main level also includes full bedroom and bathroom. Retreat to the spacious primary suite with HUGE walk-in closet, 5'x4' tile shower, dual vanity, and soaking tub. Cozy bonus room for casual relaxing. Schedule a tour today!
SW Stafford Road x SW Frog Pond Lane x SW Windflower St
Dwelling Type: Residential
Subdivision: N/A
Year Built: 2025, County: US
SW Stafford Road x SW Frog Pond Lane x SW Windflower St
Listing is courtesy of Stone Bridge Realty, Inc
Sign in to your account to continue