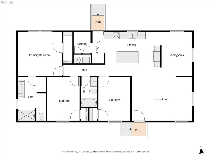
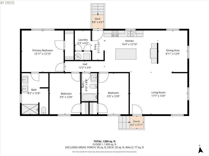
Brand New 2025 Home! This fresh 3 bed, 1.75 bath, 1,387 sq. ft. manufactured home offers modern living on a spacious 12,000 ± sq. ft. lot. Enjoy a bright, open floorplan with stainless steel appliances, a large kitchen island, and plenty of room to entertain. The primary suite features dual sinks, a walk-in shower, and a generous walk-in closet. Outside, the oversized parking pad has space for multiple vehicles, RV, or toys. City water + private on-site septic. A fresh start in a brand-new home. Schedule your tour today!
Google Maps
Dwelling Type: Residential
Subdivision: N/A
Year Built: 2025, County: US
Google Maps
Listing is courtesy of Key Results Real Estate