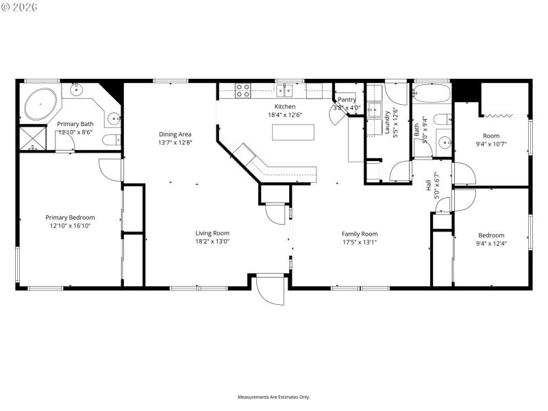
Welcome home to this large 1848 square foot 3 bedroom 2 bath double wide home in Green Tee Estates! Complete with Wall to wall carpeting, vaulted ceilings, huge kitchen with island and pantry! This abundant floorplan also features, a formal dining area, living room and family room. Spacious front covered deck and tandem carport, along with storage sheds and small backyard for your garden!! Space rent is $940 for new residents and covers water, sewer, trash, swimming pool and clubhouse.
SE Division St East of SE Hogan, South on Francis Ave
Dwelling Type: Residential
Subdivision: N/A
Year Built: 1997, County: US
SE Division St East of SE Hogan, South on Francis Ave
Listing is courtesy of Keller Williams Realty Portland Elite
Sign in to your account to continue