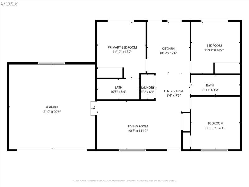
Welcome to 37875 Row River Road! Discover a rare gem in the market with this stunning new construction, perfectly situated in a serene and peaceful location. Nestled among the trees on a generous 0.55-acre parcel, this home offers the ideal blend of country privacy and modern convenience, just minutes from Cottage Grove and I-5 freeway access. Enjoy the beauty of nature with Dorena Lake and numerous hiking trails only moments from your front door. Start your day with a cup of coffee on the covered patio, serenaded by the soothing sounds of the river nearby. This beautifully designed, one-level home is move-in ready and features three spacious bedrooms and two full bathrooms, making it perfect for families or those seeking extra space.Inside, you’ll be greeted by an open-concept living area adorned with luxury vinyl plank flooring, creating a warm and inviting atmosphere. Oversized windows flood the space with natural light, enhancing the home's airy feel. The kitchen is a chef's dream, boasting high-end finishes such as custom cabinetry, granite countertops, and stainless steel appliances. The layout includes two generously sized guest bedrooms and a well-appointed guest bathroom, ensuring comfort for family and friends. The owner’s suite is a true retreat, featuring private access to the back patio and a luxurious ensuite bathroom.Additional highlights include an oversized, finished, and insulated two-car garage, providing ample storage and workspace. Move in with confidence, as a builder's warranty is included with your purchase, along with a brand-new septic system and well reports on file. Don’t miss out on this incredible opportunity! Contact your broker today to schedule a private showing.
Follow Row River Rd Approx - 13 Miles house on left. Look for sign.
Dwelling Type: Residential
Subdivision: N/A
Year Built: 2026, County: US
Follow Row River Rd Approx - 13 Miles house on left. Look for sign.
Listing is courtesy of eXp Realty LLC
Sign in to your account to continue