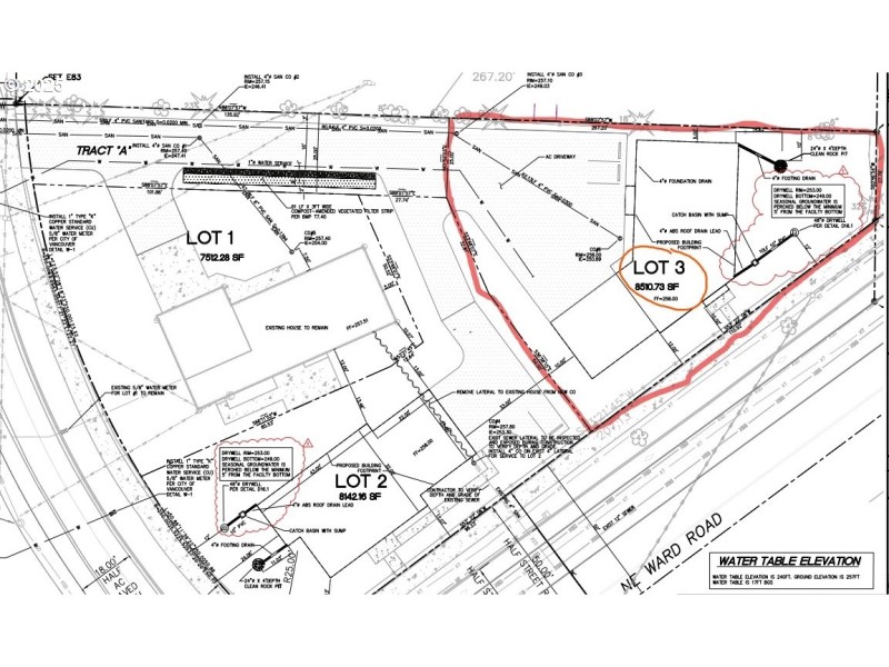
Lot #3 is for sale, and it located in a convenient location of NE Ward Rd & NE 152nd Ave. Sewer and Water publicly connected. Front roads are finished. Asphalt shared driveway was built. Public buses are on front. NO HOA. Custom your home is priceless !
NE 152nd Ave and NE Ward Rd. Lot #3 behind the house 7809 NE 152nd Ave.
Dwelling Type: Land
Subdivision: N/A
Year Built: N/A, County: US
NE 152nd Ave and NE Ward Rd. Lot #3 behind the house 7809 NE 152nd Ave.
Listing is courtesy of Kelly Right Real Estate of Portland, LLC
Sign in to your account to continue