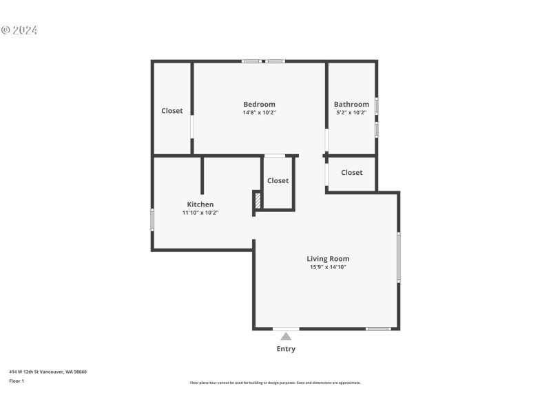
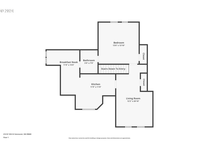
Location, Location, Location! This big beautiful Victorian home is located on a large corner lot, this amazing home is Commercially zoned (CX) and has 5 beautiful apartments complete with 5 electrical meters. The layout of the home is great with 2 apartments on the main level, 2 on the second level and 1 third story apartment. Located in an opportunity zone, this is a great option to keep it as a multi family complex, rent it out commercially, or convert it back to one large single family home. Just blocks to farmers market, the water front and uptown village this location is great for any option you choose to use the home!
I-5, Mill Plain Exit West, South on Columbia. West on 12th ST
Dwelling Type: MultiFamily
Subdivision: DOWNTOWN VANCOUVER
Year Built: 1910, County: US
I-5, Mill Plain Exit West, South on Columbia. West on 12th ST
Listing is courtesy of Premiere Property Group, LLC
Sign in to your account to continue