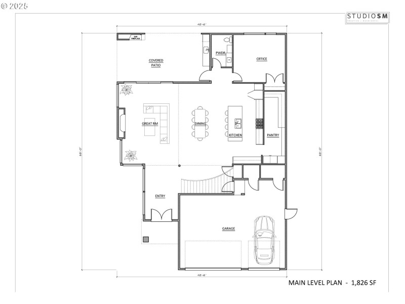
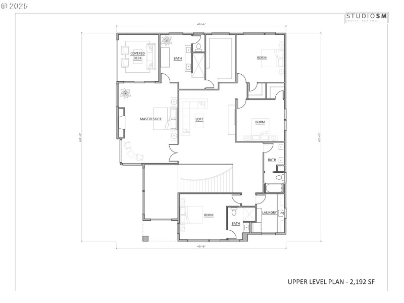
Welcome to Sunview Estates, an exclusive gated community perched atop Prune Hill in coveted Camas, WA. This luxury 15-lot development offers stunning territorial views—featuring the Columbia River, Downtown Portland, and the picturesque valley below. Choose your ideal homesite and partner with renowned builder Modern NW to bring your dream home to life. The proposed floor plan showcases the signature open, light-filled modern aesthetic that Modern NW is known for. Buyers will have the unique opportunity to select their lot and collaborate with the builder to create a custom residence that perfectly suits their vision and lifestyle. Located just minutes from scenic parks, top-rated Camas schools, and the vibrant downtown district, Sunview Estates combines privacy, convenience, and upscale living. If you're seeking exceptional craftsmanship, thoughtful design, and contemporary luxury in one of Camas' most desirable neighborhoods, Sunview Estates is not to be missed!
HWY 14, 192nd Exit, R-Brady Rd, R-16th Ave, Turns into Hood, Development on the left
Dwelling Type: Residential
Subdivision: Sunview Estates
Year Built: 2025, County: US
HWY 14, 192nd Exit, R-Brady Rd, R-16th Ave, Turns into Hood, Development on the left
Listing is courtesy of Coldwell Banker Bain
Sign in to your account to continue