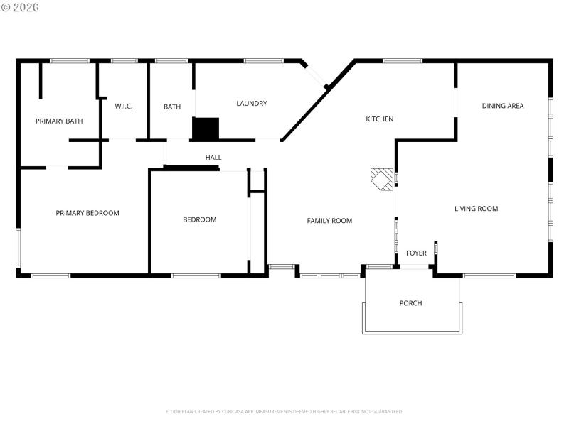
Well-maintained single-level beach retreat in Gleneden Beach, set on a level, low-maintenance lot. A covered front porch welcomes you into a light-filled home featuring vaulted ceilings, large windows, and newer laminate flooring throughout. Perfect for full-time living or for your vacation getaway. Two distinct living areas offer flexibility for entertaining or relaxing—one adjacent to the dining area, and the other connected to the kitchen with a cozy gas fireplace. The well-appointed kitchen features updated quartz countertops, wood cabinetry, and an eat-in bar. The airy primary suite includes a walk-in closet and ensuite bath with walk-in shower, soaking tub & dual vanities. A spacious second bedroom, plus a functional laundry room with built-in storage, desk/folding space, and utility sink, add to the home's practicality. Updates include a 2008 roof, updated plumbing & electrical (including can lights and updated lighting), a paver patio and small retaining wall, new siding & exterior paint in 2024, auto-on natural gas Generac generator w/ owned propane tank backup (2020), Ring security cameras & Protection One security system. Outdoor features include a paver patio ideal for BBQs, a storage shed/workshop, and a backup propane generator. Conveniently located near restaurants, cafes, and multiple beach access points, this Gleneden Beach neighborhood is ideal for walking, biking and embracing the coastal lifestyle.
Wesler
Dwelling Type: Residential
Subdivision: N/A
Year Built: 1991, County: US
Wesler
Listing is courtesy of Sams Realty
Sign in to your account to continue